100张自建房图纸告诉你:农村老百姓盖什么样的房子才最受欢迎(27)
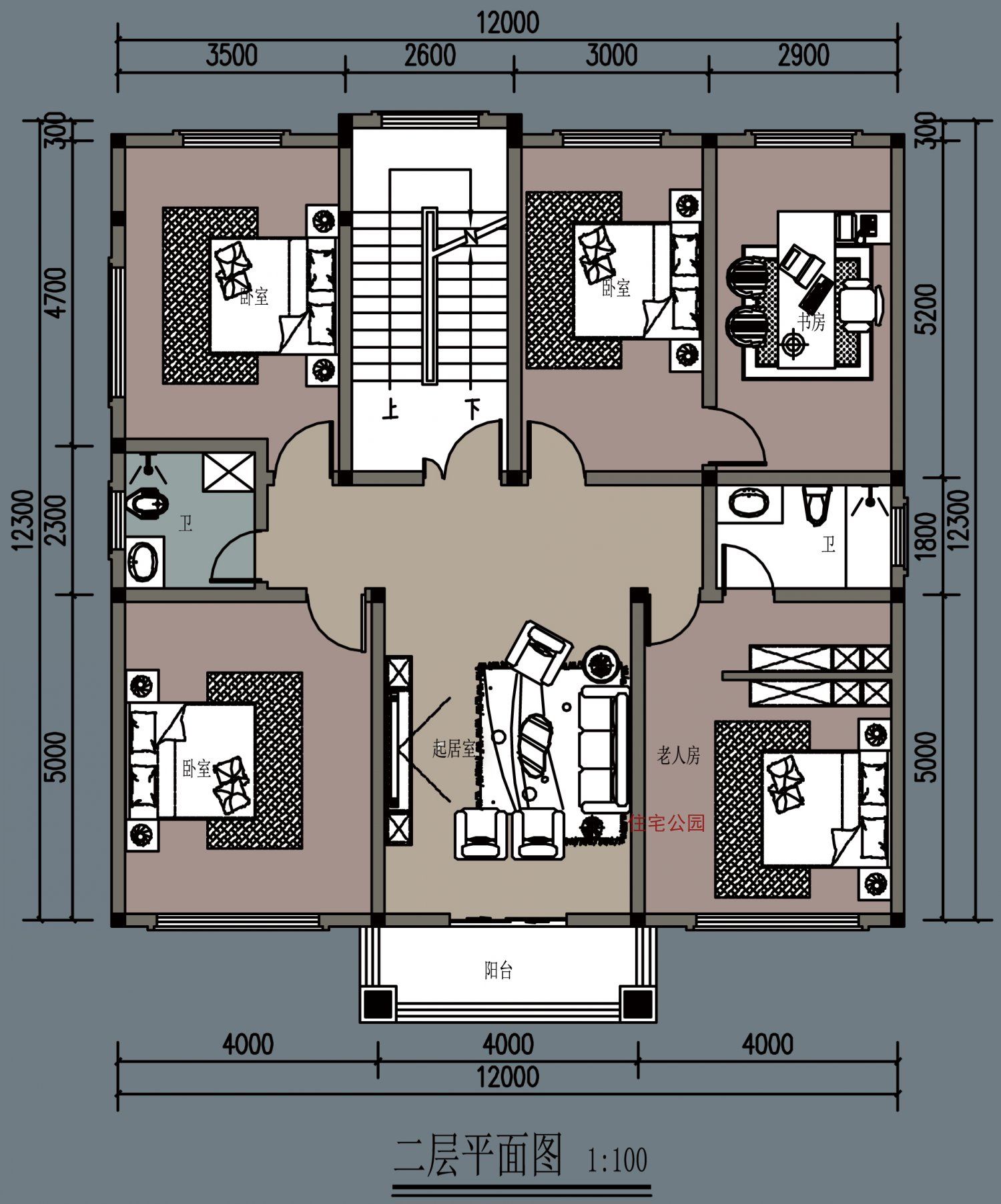
户型二十八:四层别墅 , 最适合三代家庭居住在一起 。
平面布局图 。
平面布局图 。
看完这28套户型 , 大家更喜欢哪一个呢?欢迎说出你们的看法哦 。
推荐阅读
- 甜萌影视▲外国人惊呼:中国设计团队开挂,中国公开航天飞船设计图纸
- 【大海说军事】附赠全套图纸技术指导,出手大方的背后有,70枚导弹半价卖给中国
- 【自建房】农村自建房又出“新怪象”,专家不理解,农民却习以为常,为啥?
- 树袋熊说世界▲建了一座水下大桥,300年都没有被腐蚀,工人拿错图纸
- [卓越工程师]南安市洪濑大桥拆除重建工程已进入图纸设计阶段
- #17173暴雪游戏#小伙伴不要错过,魔兽世界怀旧服必备图纸一览
- [休息平台]自建房楼梯步数是怎么计算的
- 华初柳▲俄拒绝我国购买请求,一张图纸都不给,宁可转让核弹技术也不卖它
- 华初柳■俄拒绝我国购买请求,一张图纸都不给,宁可转让核弹技术也不卖它
- 『实用』农村自建房,单层的小院、多层的楼房哪种实用些
