[次卧]农村有宅基地就是好,再小的地都能建出合适的别墅,真让
小编提示您本文标题是: [次卧]农村有宅基地就是好 , 再小的地都能建出合适的别墅 , 真让人羡慕! 。 别墅|农村|羡慕|次卧|卫生间|宅基地 。
过去 , 生活穷困的时候人们都觉察不出农村有宅基地的好处 , 因为生计问题是第一位的 。 如今 , 生活富裕了 , 农村宅基地的好处一下子就凸显了出来 。 实际上 , 农民在农村有块宅基地的确真地很好 , 不论它有多大还是多小 。 今天 , 我们给大家展示的这套宅基地上盖别墅的例子 , 就充分体现了这一点 , 相信您看了会有所触动 。
▲▲ [次卧]农村有宅基地就是好 , 再小的地都能建出合适的别墅 , 真让人羡慕!▲▲
如上图所示 , 这套小别墅虽然紧紧“依偎”在比它大很多 “高个子”房屋的旁边 , 但是人家也是别墅呀!小巧玲珑 , 色彩绚丽 , 别具风格 。 离近点看 , 是不是也是很有气质的?
▲▲ [次卧]农村有宅基地就是好 , 再小的地都能建出合适的别墅 , 真让人羡慕!▲▲
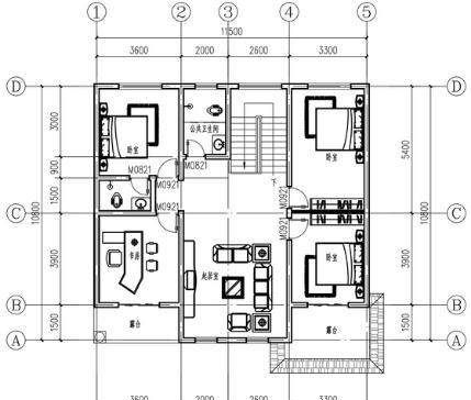
再来看平面图 , 这栋占地10.8米*11.5米的小别墅 , 虽然面积很小 , 但内部设置还是别有洞天的 , 齐全又工整 。 你看 , 进了门 , 旁边是客厅 , 对门的墙上完全可以设计个神龛什么的 。 进入屋内 , 餐厅、厨房、卧室、卫生间、楼梯间一应俱全 , 没有一点面积浪费 。
▲▲ [次卧]农村有宅基地就是好 , 再小的地都能建出合适的别墅 , 真让人羡慕!▲▲
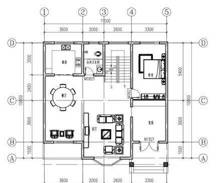
小编注意到,再来看二层 , 还有一个带独立卫生间的主卧和两个次卧 , 一个公共卫生间以及一个书房、一间起居室 。 上下楼一共4个卧室 , 一般家庭 , 连上父母和两个孩子 , 足够住了 。 而且 , 让人惊喜的是 , 二层的书房和次卧还各有一个露台 。 在农村 , 晾个衣服 , 晒个粮食都很方便 。
▲▲ [次卧]农村有宅基地就是好 , 再小的地都能建出合适的别墅 , 真让人羡慕!▲▲
怎么样 , 这栋小别墅是不是很棒呀?在农村 , 只要自家有宅基地 , 就能建出漂亮合适的房子 , 真让人羡慕呀!
推荐阅读
- 天宇科技趣谈:为武汉捐款2亿元,昔日二十几岁赚千万后收购奔驰,他来自农村
- 「种植」野生100元1斤,农村一挖一大堆,农民种植亩产6000斤,1斤卖40元
- 『扦插』农村山间的野果,却是味难得中草药,遇到请珍惜,种植有妙招
- [橙子新娱乐]赵丽颖终于成了自己的女王,农村出身到一线女星
- 常见@农村常见的一种野菜,在乡下无人问津,但城里人却跑到农村来挖它
- 生活■拿明天的钱,圆今天的梦,农村年轻人的超前消费无异于自毁未来
- 掌上曲靖▲市督查组到富源督查电子商务进农村综合示范项目
- 佛晓迎晨曦@或许能改变看法,赚钱是难事?看看农村这3个项目
- 「人事风向」运城市委常委、河津市委书记鞠振出任山西省农业农村厅厅长
- 『不妨』未来农村这3个行业将崛起,农民不妨可试试,一年四五万也不难!
