「建起」父母监工、弟弟装门窗、妹夫买建材,50万建起4层农村新
小编提示您本文标题是: 「建起」父母监工、弟弟装门窗、妹夫买建材 , 50万建起4层农村新房 。 妹夫|新房|门窗|监工|建材|农村 。
在农村生活有个好处就是 , 家里有点什么事只要说一声 , 亲朋好友、街坊四邻都能来帮忙 。 像河南的朱先生2019年回农村老家建了一栋新房 , 由于工作忙 , 房屋施工是父母负责看管 , 门窗是弟弟帮忙做 , 建材则是妹夫找的熟人帮忙…
在亲友们的支持下 , 朱先生这栋房子终于在2019年底完工了 , 如今朱先生一家也已入住新房 , 接下来就一起看看朱先生的建房故事吧!
▲▲ 「建起」父母监工、弟弟装门窗、妹夫买建材 , 50万建起4层农村新房▲▲
我家的老房是1997年盖的 , 主房是老式的三间半 , 带上厢房三间 。 如果按照以前的标准 , 这房子再住上10年20年也不成问题 , 但由于周围后盖房的邻居都是三层 , 随着门前道路的硬化 , 自已门前半人深的地方夏天下大雨要防洪了 , 而且平房冬冷夏热 , 郊区自建房政策也越来越严 , 种种原因让我决定拆旧建新 。
▲▲ 「建起」父母监工、弟弟装门窗、妹夫买建材 , 50万建起4层农村新房▲▲
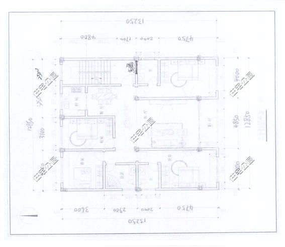
建房图纸:
原始户型底层前边东边第二间大梁在中间且需要加梁上柱 , 按工头建议最终改为上下梁柱对齐 。 为了不比四周邻居高出 , 在与邻层3层总高度相同的情况下盖一梯一户4层 , 下层为框架结构 , 2-3层为单元房 , 以后居、租、售都方便 。
▲▲ 「建起」父母监工、弟弟装门窗、妹夫买建材 , 50万建起4层农村新房▲▲
▲▲ 「建起」父母监工、弟弟装门窗、妹夫买建材 , 50万建起4层农村新房▲▲
最终定稿户型:内走廊式双卧夹厅 , 4室2厅3卫 , 总面积近700平方 。
▲▲ 「建起」父母监工、弟弟装门窗、妹夫买建材 , 50万建起4层农村新房▲▲
▲▲ 「建起」父母监工、弟弟装门窗、妹夫买建材 , 50万建起4层农村新房▲▲
由于我没建过房 , 自己也没经验 , 再加上工作忙 , 所以建房事宜都交给老家的父母 , 还有亲友帮忙 , 在这里也衷心地感谢他们!
推荐阅读
- 『亲子学堂』孩子撞见父母房事,怎么处理,心理问答|
- 「明明爱生活」《红楼梦》林黛玉为何哭穷?父母的安排再好也玩不过贾府一大家子
- 孕育岛:为何有的宝宝身份证尾数是“X”,代表什么?父母要了解,
- 城市@北方最“适合”养老的城市,是父母休憩的好场所,还是座沿海城市
- 『霍山笔魂』其中2个来历惊人,是白素贞的父母,传说中女娲有4大守护神兽
- 南方PLUS▲每天与国内父母通话,海外疫线|在西班牙中国留学生:大半月没出门
- 「前方高能」不顾父母反对嫁给外国人,婚后5年被抛弃带儿子回国捞金,她24岁成名
- 「快讯神记」还是回来吧,演艺圈水太深,肖战父母:如果实在不行的话
- 花草:卖掉城市房,建起农村院,四季有花草,树下有老友,悠哉美哉
- 小米雪■父亲想要孙子,母亲病逝康辉在异国磕3响头,丁克22年愧对父母,原创
