##谁不喜欢这样的中式装修!123㎡两厅四室,高颜值太牛
【##谁不喜欢这样的中式装修!123㎡两厅四室,高颜值太牛】
文章图片

文章图片

文章图片

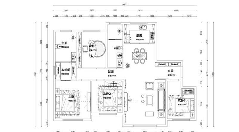
作者:阳光猫小兔户型地址:原乡郡
面积:123㎡
户型:两厅四室一厨两卫
风格:中式
设计说明:此户型为中式风格 , 原乡郡2厅4室1厨2卫123平米 , 整体户型每个房间都有窗户 , 采光性和通透性非常好 , 户型非常方正 , 很容易做设计 , 可以说是很好的房型了 。 下面我们一起来欣赏这套123㎡中式装修风格效果图 。
一、玄关
一进入户门 , 很明显的玄关区域 , 右侧的凹进去的地方刚好适合做衣帽柜 , 而且面积充足 , 左侧是穿衣镜 , 玄关柜一排四开门 , 可以放下很多衣物 , 提升室内的收纳效果 。
二、餐厅
四人餐桌在餐厅的正中央 , 旁边是厨房 , 因为垭口比较宽 , 所以放了一个推拉门 , 两侧是装饰画 。 地面有波打线 , 外圈是中灰色 , 里面是浅灰色 , 显得整体餐厅设计更加时尚 , 视觉体验更真实 。
三、客厅
客厅沙发是3+2+1 , 沙发底座、茶几和电视柜等都是统一的木色 。 影视墙中间是大理石 , 两侧是栅格的造型 。 整体墙面是米黄色的壁纸 , 通过暖灯的照射 , 让客厅空间显得华丽美观 。
四、卧室
卧室床头墙面是黄色花鸟花纹的壁纸 , 其他墙面是和客餐厅一样的米黄色壁纸 。 床品除了白色 , 其他搭配颜色稍微偏深 , 适合中老年人 。 衣帽间是一个通透的设计 , 两边新建墙体是统一的木色 , 中间是玻璃门 , 衣帽柜在两侧 , 让中式元素更增添一份时尚感!
针对这套123㎡中式装修风格效果图 , 设计师表示 , 该户型在整体颜色方面 , 搭配得当 , 营造了温馨的家的感觉 。
推荐阅读
- 怎样读史书二十四史资治通鉴那种文言版的
- 国庆买票很绝望!今天看到这么个中转方案 但是我从来没换乘过 对北京也不熟悉 请问一下这样换乘来得及吗
- 有这样一个观点:30岁的男人永远比30岁的女人抢手。那咋样能够做到30岁的女人和男人一样枪手
- 进行跑步等有氧训练完成后,饮食有啥需要注意的
- 北京一个胡萝卜,一个青椒,一个菜花,一个西红柿一个土豆三块钱人民币。日本韩国美国这样的东西价格多少钱
- 想去香港浸会读制片专业研究生 以后想留香港拿身份证 看到很多人说香港的生活这样那样 不知道选择对不对
- 你所经历的最害羞的事情是怎么样的
- 喜欢摆地摊捡垃圾 不喜欢坐办公室是种啥心态
- 有一天忽然不想开口说话了是咋回事
- sorry贾骨文@既然不是恋人,就不要在微信里这样称呼,男女关系再好
