「」余生,我也想有套带院子的房子,养花种草晒太阳,尽情享受时光!

文章图片

文章图片

文章图片

文章图片

文章图片

文章图片

文章图片

文章图片

文章图片

文章图片

文章图片

文章图片
每个人对于家的定义是不同的 , 比如于海子而言 , 家是面朝大海 , 春暖花开的;于陶渊明而言 , 家是榆柳荫后檐 , 桃李罗堂前的 , 而这些都少不了一个共同点 , 那就是院子 , 毕竟家有一院 , 如有一宝 , 这样就能养花种菜晒太阳 , 日子过得别提有多惬意了 , 简直就是在尽情享受时光!而今天要分享的案例也差不多 , 位于印度 , 是一套带独院的自建房 , 不仅如此 , 而且院子的景色超美 , 让人不禁感慨做梦都想有套这样的房子 , 不信给大伙介绍一下吧!
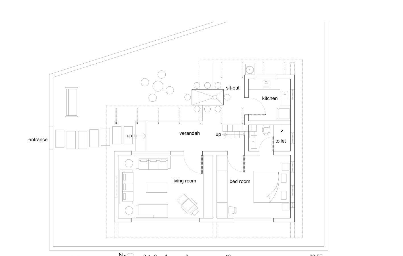
老规矩 , 我们首先看平面图 , 不过没什么好讲的 , 大家就自行参考一下吧!
【「」余生,我也想有套带院子的房子,养花种草晒太阳,尽情享受时光!】现在对比实景!院子外 , 是由红砖加水泥浇筑而成的围栏 , 再加一扇小铁门构成 , 看着还不错 , 尤其是两侧的树木 , 景色宜人!
而院门打开 , 是一条由汀步组成的小径 , 颇有种曲径通幽的感觉!另外 , 葱茏的树木加上绿草如茵的地皮 , 看着很舒服 。
建筑外观的话显得颇有设计感 , 尤其是阳光打在红色的砖墙上 , 加上坡状的屋顶以及木梁承重架等等 , 都彰显了一种怀旧复古的美感 。
院内 , 有花有草有树木 , 算是齐活了!
另外 , 院子挺大 , 如此一来慵懒的午后或者是傍晚 , 拿把椅子出来放松休闲 , 简直就是神仙一般的生活 , 难怪现在越来越多的人开始回到乡下 , 再盖一栋属于自己带独院的房子!余生 , 等忙完了工作 , 退休后 , 我也想回家盖这么一套房子 , 简直爽翻了!
推荐阅读
- 为啥感觉不到北京的繁华
- 咋才能让男朋友对于我们的未来勇敢的去面对,而不是逃避。
- 房都买不起,年轻人的出路在哪
- 金峰之约品读欣赏TB:我累了,也懂了,余生
- 「余生遇见」一个人也好,至少不会被打扰,很多感情到最后也不过只是相识一场
- 为啥有些人很优秀,却一直还是单身
- 墨沐■一次牵手,余生不离,长情指数最高的3个星座
- 爱尚小娱:一心只为家的3大生肖女,余生都很难享福,生来操心命
- 声乐艺术生可以考哪些北京综合类大学
- 毕业旅行和谁去比去哪里重要吗
