:11套经济实用二层农村别墅, 收藏了过年回家全家人好好规划一下!

文章图片

文章图片

文章图片

文章图片

文章图片

文章图片

文章图片

文章图片

文章图片

文章图片

文章图片

文章图片
【:11套经济实用二层农村别墅, 收藏了过年回家全家人好好规划一下!】
文章图片

找到一款称心如意的图纸 , 既要满足家里宅基地的条件 , 还要合适全家人生活需求习惯 , 建盖还要经济实用能够负担得起 。 今天小编给大家推荐11套经济实用的二层农村房屋设计图 , 毛坯房建造造价大约在20万左右 , 建筑线条清晰流畅 , 外墙装饰简单 , 对建造施工水平要求低 , 同时也可以相对控制预算;但也正是精简的 , 才是经久不衰的;另外 , 适当的使用落地门窗 , 确保采光通透的同时 , 也不必担心保暖的问题 , 双半开放式车库的设计 , 空间利用率好 , 通透大气 。 给需要建房的朋友可以看看 。
本期 , 我们推荐11套经济实用二层农村别墅 收藏了过年回家全家人好好规划一下!
第一款:
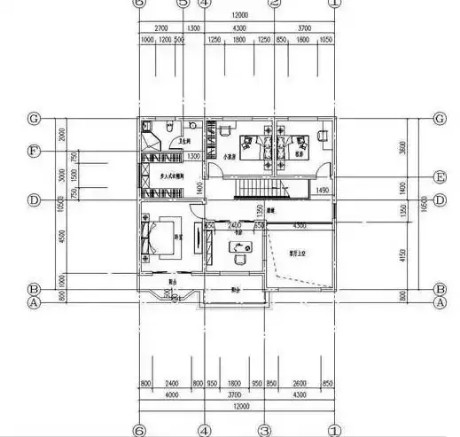
英伦风格外形 , 精致贵气 , 层次感强 , 搭配农村美景有种温馨宁静感觉 , 除了阳台较小 , 其他设计都可圈可点 。 开间:14.7米 , 进深:10.8米 , 占地面积:148.78平方米 , 建筑面积:354.63平方米 , 结构形式:框架结构 。
室内布局利用率也非常高 , 发挥出每一寸土地的价值 , 主卧配套独立卫浴和书房 , 方便生活和学习 。
推荐阅读
- 『江西』江西,能否以旅游产业作为突破口,走出一条不同寻常的经济发展之路!
- 带鱼:在家轻轻松松做大菜,经济、健康,解馋下饭!
- 微实用生活百科夏天吃鸭肉,补身祛湿热 附:39款做法
- 那些年的星座男人越容易付出真心身体虚弱的女人产生的弱小感容易让男人产生保护欲给男人私人空间,给他充足的信任经济独立的女人,不把花男人的钱
- 『』定制橱柜,选购4大误区,只图美观忘实用,日后住着糟心受罪
- AZ观望经济供创业者考察,没钱也能起家,有发展前景适合白手起家的小项目
- 惠州市中心人民医院订阅号【实用指南】惠城区垃圾分类怎么做?小程序告诉你!
- 健康一言堂实用,煤气费每月很多钱?老师傅偷偷告诉你节省煤气的5个小妙招
- 因家庭经济原因放弃继续在澳留学究竟对不对
- 江湖美食传说TB自己做非常经济实惠的家常菜四道推荐给你,外边饭店要价很高
