上海市@68㎡,独居!上海姑娘的惬意生活,一个人住,真的会上瘾

文章图片

文章图片

文章图片

文章图片

文章图片

文章图片

文章图片

当下女性独立意识越来越强 , 买房比例也逐渐升高 。 小户型和公寓也深受女性喜爱 , 小小的空间功能齐全 , 一个人一套房精致惬意 , 日子过得美滋滋 。 接下来分享的案例位于上海 , 68㎡的小户型 , 屋主是位单身姑娘 , 多才多艺的她对于自己的居住环境有着明确的追求 , 一起看看装修最后成果吧!(图:大炎演绎设计)
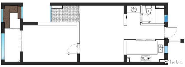
原户型结构图 , 68㎡的一居室空间 , 格局并不是很理想 , 客厅封闭采光差 。
装修平面图 , 设计上拆除一些非承重墙 , 以开放式格局开阔视野 , 提升空间通透和采光 。 合理的布局满足各种功能 , 一个人居住真的很赞!
进门就是厨房空间 , 大面积使用白色 , 看似无趣又单调 , 实则提升视觉效果无形中放大空间 。 拉平吊顶无主灯设计 , 不仅保证了高度统一和空间整洁 , 分散照明一点不比单一主灯差 。
厨房和活动空间 , 设计了玻璃隔断 。 透明玻璃轻便简约 , 让两个空间更加紧密 , 形成两个独立互通的功能区 , 美观时尚空间通透大方 。 地面六边形地砖过渡到木地板 , 满足功能区特性 , 同时兼顾舒适感 。
改变原主卧进门方向 , 利用玻璃隔断设计 , 引入室外光线改善客厅采光 , 让原本闭塞的客厅变得更通透流畅 。 客厅以冷色调为主 , 加入一些跳色元素 , 视觉效果不冷淡 , 反而很舒适 。
客厅简洁大气 , 改变格局之后加入了大面积储物柜 , 提高居家收纳能力 , 虚实结合设计避免视觉呆板 。 电视墙不造型 , 一抹灰蓝色墙漆打底 , 简约又耐看 。 电视上墙舍弃电视柜 , 释放空间不显拥挤 。
拆除部分非承重墙 , 改善室内通透提高采光 。 客餐厅一体 , 利用局部吊顶设计划分功能区 。 在追求美的同时 , 创造烟火气息的居家氛围 。
改变格局后 , 利用过道设计了书房 , 一面大书柜+简易书桌椅 , 整洁耐看又实用 。 吊灯散发着暖色灯光 , 营造了书房的静谧与慵懒 。
卫生间干湿分离很彻底 , 外置洗漱台日常生活更加便利 。 墙面一分为二 , 白色瓷砖与粉色墙漆结合 , 显得十分活泼可爱 , 很符合女性的审美气质 。
卫浴空间 , 白色与灰色的结合 , 别有一番经典感 。 墙排马桶节省空间 , 还能增加收纳区 , 让卫浴更显整洁 。 小白砖与白色浴缸结合 , 效果真的很棒时尚大气 。 俏皮可爱的浴帘 , 增加私密性的同时 , 提高空间灵活与通透 。
推荐阅读
- 独居神器有哪些
- 独居女生,上班时办公室也只有自己一个女性。一整天下连开口说话与人交流的机会都没有。感觉很压抑咋办
- 番茄汁娱乐妈妈出镜漂亮优雅,独居10年心脏不好我有一所房子面朝大海,春暖花开妈妈出镜年轻漂亮优雅体重,你羡慕了吗16岁出道已经独居10年,邓紫棋
- 娱众不同与老公赌气几千亿不要,一个人跑去国外独居!,曾是最美港姐
- 上海市▲五一堵车最严重的城市,12公里开了15个小时,游客表示不会再来了
- 【上海市】中国下一个“上海”,不是重庆,不是南京,而是这2座旅游城市
- 社工牛哥上海市儿童医院张国琴:为患儿争取每一分钟
- 麒麟 《拜托了冰箱》来了!郭麒麟将分享自己的独居租房生活以及“另类”交友观
- 上海市黄浦区心理咨询师协会把早起都变成了习惯,真正厉害的人
- 上海市浦东新区周浦医院感冒药物可使用多长时间?
