「」这大概是我见过最温柔的家,67平两房一厅,用简装诠释生活

文章图片

文章图片

文章图片

文章图片

文章图片

文章图片

文章图片
生活基调的不同 , 造就了不同的装修效果 , 每个家都有属于自己的独特气质 。 可以是高冷、可以是优雅、也可以是少女心 。 这次分享的案例 , 除了干净明朗 , 舒适惬意外 , 家里的每一件物品都表现了可爱的少女心 , 温柔宠溺夹杂着一丝慵懒 , 67平的两房一厅 , 用简装诠释生活 , 这大概是我见过最温柔的家了!(图:白菜适家)
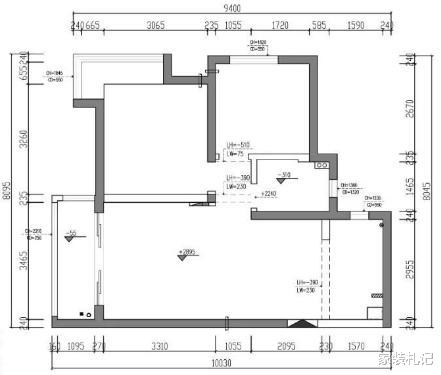
原户型结构 , 67平的两房一厅 , 整体布局合理 , 装修改动不大 。
装修平面图 , 拆除原有电视墙 , 新建隔断柜与阳台门垛保持同一水平 , 视觉效果更统一 , 增加收纳的同时 , 扩大主卧空间 。
客厅全景 , 温柔不失自然 。 浅灰色与木质色彩叠加 , 营造了温暖舒适的居家氛围 。 客厅阳台连通 , 采光和通透性得到了很大的改善 , 慵懒的午后躺坐在珊瑚红豆包上 , 享受舒适惬意 。
舍弃茶几和电视柜 , 将空间还给客厅 。 装修大方自然 , 既有着质朴的通透感 , 又不影响通风采光 , 一盆绿植的点缀 , 给客厅平添了些许清新感 。
【「」这大概是我见过最温柔的家,67平两房一厅,用简装诠释生活】
拆除原有电视墙 , 新建隔断柜保持与阳台门垛同一水平 , 空间整齐统一 , 视觉效果整洁大气 。 白色与原木色结合 , 舒适自然很耐看 。 壁龛式收纳设计 , 增加收纳的同时节省了空间 。
进门一侧 , 定制上下柜 , 实用空间更显通透 。 柜子边上摆放了女主的钢琴 , 复古风格的色调 , 给整洁的空间增添了一份大气感 。
餐厅卡座设计 , 让空间利用率更高 。 充当椅子的同时 , 为餐厅增添收纳 。 木质桌椅 , 温润质朴很有温度感 。 简易造型设计 , 占用面积少 , 让餐厅空间更通透 。
背景墙定制软木板 , 打造成照片墙 , 除了装饰作用外 , 还可以记录生活的美好时刻 , 为居家生活增添幸福感 。 一边享受美食 , 一边看着照片墙 , 可以勾起美好的回忆 。
厨房干净整洁 , 整体色调搭配很和谐 。 假小白砖、大理石操作台、拼花地砖 , 让厨房不显单调乏味 。
卫生间精致简约 , 放弃硬质隔断 , 选择浴帘做隔断 , 灵活实用空间也宽敞 。 几何造型地砖 , 给空间增加了一些趣味感 。 灰蓝色的浴室柜搭配金属质感的门把手 , 在展现清新感的同时 , 也体现了精致 。
主卧灰白原木结合 , 营造出优雅简洁舒适的睡眠空间 。 床头采用单一的吊灯设计 , 避免了对称呆板视觉效果 。 窗帘严重转角飘窗设计 , 避免过长带来拥挤感 。
推荐阅读
- 杜格说看看你见过几种,贵州省兴义市美食
- 每次吵架明明是他先惹我生气,可是我生气了后他就马上生气了,还要我先去哄他,这样我真的很累,要咋办?
- 在《绝地求生:大逃杀》岛生活是啥体验岛上大概生活了多少人
- 【安徽】向往的生活开播 在安徽石台有个古村落 这才是我心中向往的生活
- 我大概不适合活着
- 怎样评价一个吃饭很慢,走路却很快的人
- 明明抽烟不好为啥就是不肯戒,啥心态
- 时尚芭比殿堂胶带防晒衣你见过吗?,看一次笑一次!那些年防晒的奇葩招数
- 腰4/5椎腰5/骶1 这两个部位大概在啥位置
- 杜格说贵州省兴义市美食,看看你见过几种
