@80平北欧风格装修效果图,客餐厅玄关挤一块?效果挺好看,晒晒

文章图片

文章图片

文章图片

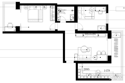
今天给大家带来的这套北欧风格装修效果图 , 整套房子没有独立的玄关和餐厅 。 客厅空间有限 , 设计师该如何设计 , 才能化解这样的缺陷户型?
平面图:
效果图鉴赏:
多功能空间:
这一张效果图就很能说明问题 , 一个空间 , 设计出了三种功能 。
首先是玄关:这套房子没有单独的玄关空间 , 设计师利用屏风和鞋柜做出玄关 , 也划分出了玄关和客厅空间 , 白色的屏风和玄关柜 , 通透又清爽 。
其次是客厅和餐厅:这两个功能性区域呈现在一个空间里 , 互不干扰 。 有人来访的时候 , 餐椅还可以客串沙发椅使用 。 墙面上安装了展示架可以储物 。
影视墙也做了大量的储物设计 , 增加了足够的储物空间 , 白色与原木色相结合的装饰效果 , 清爽而温柔 , 绿色的餐椅为整个空间增添一丝生机与活力 。 原本这只是一个大空间而已 , 没有明确的功能性区域划分 , 经过设计师这样体贴细心周到的设计 , 不仅满足了多功能 , 而且颜值足够 , 一个治愈系的美家就此诞生 。
主卧室:
主卧室的设计 , 整体采用淡紫色的乳胶漆 , 营造温馨浪漫的休息空间 。 床头背景墙用对自己非同凡响的照片或挂画来装饰 , 简洁大气而又意义非凡 。
次卧室:
次卧采用了淡蓝色乳胶漆 , 使整个空间显得干净明亮 。 石膏线圈边装饰顶面空间 。 储物、休息、学习、娱乐 , 各种功能齐聚 , 原木色、白色、天蓝色互相搭配 , 营造出清爽、干净、整洁、放松的感觉 。
【@80平北欧风格装修效果图,客餐厅玄关挤一块?效果挺好看,晒晒】今天这套北欧风格装修效果图 , 其实户型缺点很多 , 没有玄关、没有餐厅 , 除了两间卧室、厨房、卫生间之外 , 只有一个大空间 , 如何划分空间 , 如何提升空间利用率是关键 。
推荐阅读
- 『』没想到,北欧风这样设计更有格调和品位,令人羡慕的小资生活!
- 「」北欧风遍地是,我家清爽耐看,胡桃木家具配白色定制柜漂亮极了!
- 小凡时尚穿搭大胆尝试新风格,网友直呼:这大长腿,我爱了,宋茜宫廷风封面
- 家居热搜榜整体色彩搭配舒服,空间简洁又温馨,120平北欧风设计
- 明年二月初约好几个朋友去北欧玩,有没有大神推荐下旅游需要注意啥,哪些国家值得一去
- []120㎡现代风格大户型装修,电视隔断矮墙超赞!
- 街头研究所严格的韬教练化身时尚男孩,钻石眼泪妆太可了,多面风格拒绝预设
- 「」参观同事家的新房,简约的北欧风,超爱他们家卧室的设计
- [唐嫣]唐嫣风格大变,剪短发配透纱裙显小又干练,画上浓妆美到不敢认
- 【】简约北欧风 | 遇见纯粹、轻盈的家
