「」卡座餐厅,榻榻米次卧,全封阳台,70平二手房改造

文章图片

文章图片

文章图片

文章图片

文章图片
【「」卡座餐厅,榻榻米次卧,全封阳台,70平二手房改造】
文章图片

文章图片

文章图片

文章图片

▲ 使用面积70平 , 造价25万(不含电器) , 地址:深圳 , 2020年完工 , 本案是二手房改造 , 常住人口:两夫妻及一位长辈 , 两口子喜欢日式+北欧风
▲ 原始结构图
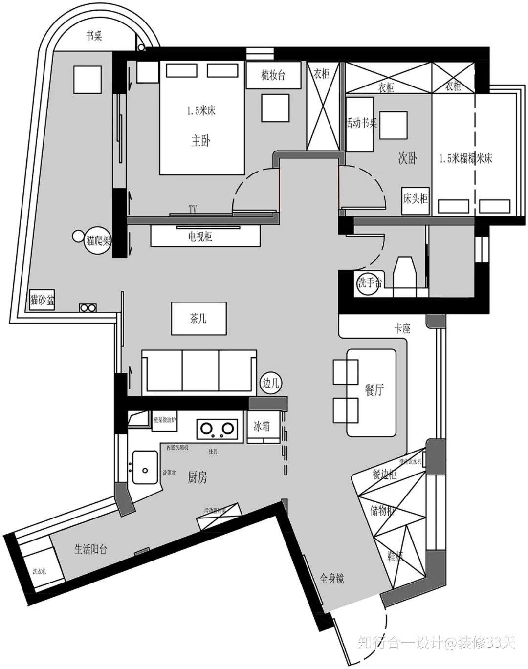
▲ 平面布置图
▲ 平面改造图
▲ 改造前原户型一进门用隔板做了一面装饰屏风 , 把玄关的采光遮挡了一部分 , 改造后:打掉多余的装饰屏风 , 墙面刷白 , 大幅度提升玄关采光
▲ 玄关打造顶天立地收纳柜 , 靠近餐厅那边的柜深就有1米 , 宽80cm , 小两口的行李箱、吉他、换季的被子等都可收纳在此
▲ 经过玄关来到餐厅 , L型卡座配上原木色餐桌 , 节省过道空间 , 餐边柜没有做整面的吊柜 , 让餐厅采光可以透一些到厨房
▲ 卡座底下都是收纳柜子 , 可以放置一些屯回来的零食 , 五谷杂粮
▲ 餐厅改造前后对比
▲ 客餐厅与卧室都采用复合木地板 , 与家具整个设计色系融合在一起
▲ 客厅 , 日式的简约原木配上清爽的北欧元素 , 白色羽毛灯增添了优雅轻盈感
▲ 选用细脚轻便的家具 , 小空间也显得更宽裕 , 还能方便调整家具位置
▲ 客厅改造前后对比
▲ 厨房采用玻璃移门隔断 , 关上门做饭也不影响采光
▲ L型厨房 , 白色吊柜搭配原木色地柜 , 干净清爽
▲ 设计改造后阳台做成全封闭式阳光玻璃房 , 地面选用与客厅地板颜色相近的木纹砖 , 一旁为喵星人设置了猫爬架
▲ 离阳台不远有高架桥 , 晚上睡觉有车鸣喇叭还是有些吵的 , 封窗后可以隔音
▲ 过道改造前后对比
▲ 次卧 , 利用飘窗的位置定制榻榻米 , 直接做成可储物的多功能床(1.5米)
推荐阅读
- :152平美式,采用圆形餐厅,巧妙利用弧形鞋柜划分了玄关独立区域
- 妈妈力育儿|得知原因宝妈无奈:动画片魅力太大,餐厅吃饭双胞胎直直盯着邻座
- 千岛湖有啥必去的景点和价廉物美的餐厅
- 大厨堂|尽显厨师非凡手艺!,七道型美手工菜品
- 餐厅吃完石锅拌饭的锅底都会粘很多很难刷干净的硬硬的米饭,那么餐厅是咋把石锅刷干净的呢
- 虎秀娱乐|看到身上的衣服,粉丝纷纷喊话转身,赵丽颖官宣《中餐厅4》掉队
- 怎样看待清真牛街宝记餐厅用空调冷凝水和面被查
- 青岛有哪些德国主题的餐厅
- :40公分的榻榻米,被我抬到一米高,老公说我疯了,结果出奇好用
- []夫妻晒自家134平美式风,餐厅和厨房做一起,被邻居们纷纷夸好看
