「loft」84㎡阳光loft,玫瑰金弧形旋梯、水平线性的灯光酒柜墙,超炫酷!

文章图片

文章图片

文章图片

文章图片

文章图片

文章图片

文章图片
空间是自由的存在 , 与周边 , 与人 , 与思想都应产生联系 , 而当这三者能够在一起共鸣 , 再通过时间的加酿 , 沉淀出自由的精神和灵魂 。 此刻 , 再将光影舞动至空间的每一处 , 它或短暂的停留 , 或缓缓地轻轻拂过 , 让每一件器物也得以蜕变出全新的面貌 。
今天小编给大家分享一个光引呈线的时尚loft , 坐标台湾新北 。 本案基地虽不大 , 但拥有高度优势 , 因此垂直向量作为运用 。 以一座玫瑰金弧形旋梯衔接两个楼面、后衬水平线性的灯光酒柜墙 , 作为楼层上下界定的公、私领域 。
基本情况
地理位置|台湾新北
面积|84㎡户型|LOFT
主要材料|金属漆、冷喷漆、薄片瓷砖、瓷砖、木地板、玻璃
照片版权|PENYHSIEHINTERIORS/摄影师:KyleyuPhotoStuio
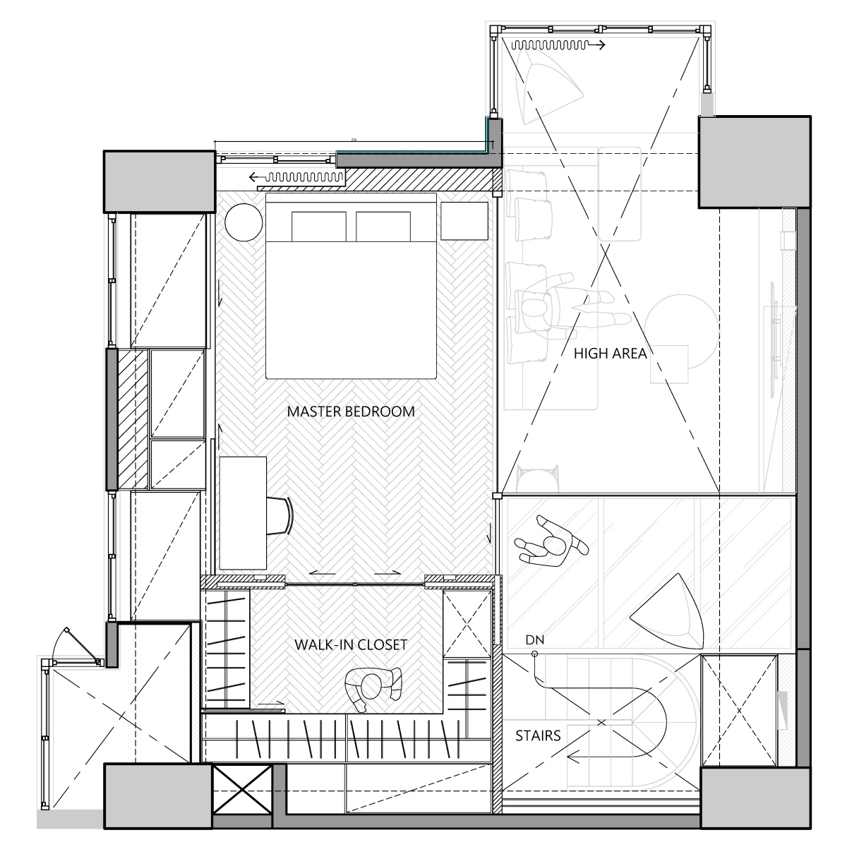
户型图
一层面积为51.5㎡ , 以餐桌为空间轴心 , 设计有开放式厨房、餐厅、客厅、卫生间、洗衣房以及一间卧室 。 整体布局分区明确 , 回形动线合理 。
二层面积为32.3㎡ , 设计有宽敞的主卧室以及步入式衣帽间 。
实景图/一层
入户的左手边为一个隐形的收纳柜 , 白色的设计与整个墙面融为一体 , 你看不到任何的花纹和线条装饰 , 简约优雅 。
挑高设计的客厅 , 电视墙采用了白色系岩板瓷砖 , 具有通透清爽的观感 , 而它自然多变的纹理 , 赋予了瓷砖一丝灵动 , 又给空间带来悠远缥缈的艺术性 , 让整体的质感提升 。
沙发的后面是水平线性铁件书墙 , 非常有个性 。 拥有到顶的落地窗 , 设计为开放的LDK结构 , 不失为精致的艺术之美 。
淡雅明媚的白色岩板 , 它的耐用又百搭的质地与无懈可击的质感 , 给人感觉沉稳之余 , 又清新脱俗 , 让郁闷的都市生活不再压抑 , 感受回归自然的本真 。
一层以就餐区为中心 , 形成了洄游动线 , 左侧是卫生间和洗衣房 , 右侧选用了隐形了 , 保证了空间的整体性 。
旋转楼梯 , 才是时尚Loft的标配 , 玫瑰金弧形旋梯和水平线性的灯光酒柜墙 , 弧形曲线透露着优雅性感 , 钢琴般的酒架柜 , 彷佛跳动的音符 , 为整个空间设计加分不少 。
实景图/二层
二楼保有高度通透感 , 楼上、楼下犹如堆叠的大小光盒 , 各式光源在不同时段、角度的交互投射 , 光影调和的美 , 似永恒的脉搏 , 余韵不绝 。
人字型拼接木地板流露细致与温暖 , 缓和着生活的繁忙嘈杂 , 本一处清净 , 洗涤凡尘琐事 。
推荐阅读
- 阳光彩鸿|轻松穿出时髦感,夏天如何才能穿的好看?不妨参照下这5套穿搭
- 阳光有一刻耀眼|夏天记住这几点,排出寒气,让子宫“温暖如初”!,女人有宫寒
- 心语美文集|阳光向上,气质非凡,文艺唯美的人生感悟句子
- 励志的娱乐|阳光炎炎地普照,问候悄悄地缠绕,早安,夏季来到
- 阳光中的四叶儿草|你依旧是我心间的想念,此生有你,风雨无悔,隔着距离
- 阳光妈妈育儿说|以后到哪儿都会受欢迎,快来看看,孩子从小学会说这3句话
- 阳光妈妈育儿说|再爱他也不能答应,孩子的这5个要求
- 北辰大大|只需做一件事,“积极心理学之父”塞利格曼:培养乐观阳光的孩子
- 阳光妈妈育儿说|家长知道这几个,娃身体发育好,给宝宝添加辅食的注意事项
- 阳光妈妈育儿说|宝宝不仅高兴,还能变的更聪明,妈妈们经常说这3句话
