:晒家丨那些动辄百万的农村别墅都是怎么设计的?

文章图片

文章图片

文章图片

文章图片

文章图片

文章图片

文章图片

文章图片

文章图片

文章图片

文章图片

文章图片

文章图片

文章图片

文章图片

农村自建房千千万 ,
但真称得上是农村别墅的 , 反而没几栋!
今天小宅整理了3套晒家案例 ,
我们一起来看看 ,
那些动辄百万的农村别墅都是怎么设计的?
01
江苏
造价200万
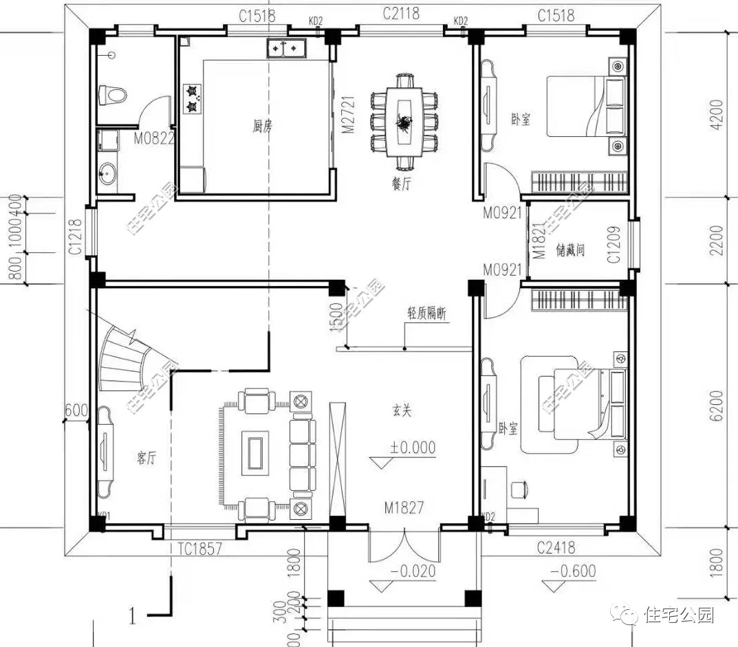
第一套来自江苏叶先生投稿 , 叶先生是80后 , 对于回农村自建房很有自己的想法 。
他认为 , 自建房要想漂亮又舒适 , 那定制设计是少不了的 。 所以他这套房 , 从建筑到装修都是请了专业设计公司 , 总造价近200万 。
房子于2018年4月开始修建 , 到2019年6月全面完工 , 主体框架结构 。
假山流水、小院凉亭 , 一家人和和美美地在秋千上拍个全家福 , 画面十分养眼 。
推荐阅读
- 当年上学时的那些班花、校花,后来咋样了
- 聊聊星座那些事|桃花从天而降,善于抓住机会,缘分不请自来的三个生肖,近期
- 那些海外购物APP靠谱吗
- 那些世界旅行后的人,之后都在干些啥,还继续旅行吗
- 当年的那些八零后九零后的留守儿童,现在的生活都咋样了
- 为啥那些看起来明明很努力的人至此没有过的很好
- 人生怎样应对那些自己不能应对的事儿,总有些人和事扰乱你前进的步伐和你平静的心绪,比如那些不相干的
- 大专毕业生,现在还能学技术吗,学那些技术比较吃香好就业?
- FRM小魔盒|“真羡慕那些愿意为了考FRM加班一个月的女孩”
- 末小北|其实心里挺苦的,那些总是说“没事”的人
