『』204㎡住一家三口,一入玄关就沦陷,现代轻奢上档次,每步皆是景

文章图片

文章图片

文章图片

文章图片

文章图片

文章图片

文章图片

文章图片

文章图片

文章图片

文章图片
很多人以为买到了新房 , 只要户型佳 , 地理位置好就万事大吉了 , 但其实真正最令人头痛的是等房子到手后 , 面临着装修问题 。 装修 , 它真的是一件非常繁琐的事 , 不管是风格的选择还是预算方面 , 包括后期施工的每处细节 , 都是至关重要的 , 但如果这些都把握住了 , 房子装修出来家人肯定都非常满意 , 皆大欢喜 。 正如小编今天来给大家分享的这套装修案例 , 幸福的三口之家 , 当男主人到新房钥匙后 , 即兴奋又焦虑 , 兴奋的是自己终于有了属于自己的房子 , 幻想着一家三口在新居其乐融融的场景 , 而焦虑的便是装修问题了 , 不知从哪下手 。
好在女主人早就做好了新家规划 , 提前就选择好装修风格 , 经过她细致又合理的安排 , 历经8个月时间 , 新房出来的效果非常漂亮 , 家人都夸新家真是太赞了 。 现代轻奢风格特别上档次 , 一入玄关就让人沦陷 , 家中每一处都精致的如美景 , 让人不得不喜欢 。
▲原始户型
三口之家新房204平方 , 超大面积让人羡慕 , 和大多数新房一样 , 他们家同样有不合理的地方 , 女屋喜欢时尚气息的家居氛围 , 同时还要实用好打理 , 要让整个空间看上去干净的同时但又不过于单调 , 所以结合这些需求 , 他们夫妻二人把新房布局做了如下调整:
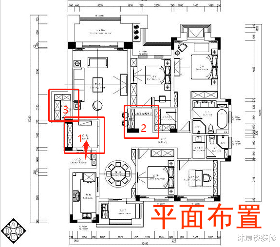
▲平面布置
①增设入户玄关 , 让家的功能更加全面;
【『』204㎡住一家三口,一入玄关就沦陷,现代轻奢上档次,每步皆是景】②增设一处吧台 , 让简单的生活更加丰富多彩 , 具小资情调;
③增设一间储藏室 , 让各种生活杂物有了堆放点 , 让家看上去干净整洁 。 尽管三口居住 , 但他们还是保留了四间卧室 , 三房带一书房 , 下面随我一起去看实景 。
推荐阅读
- 素衣青丝|子女一家都在折磨老人,60岁退休老人哭诉:这种“新型啃老”
- 中国做特产比较好的电商平台有哪些
- 林中小鸟|简单营养易消化,纯中式,家常味!,一家四口的早餐
- 如果设立一家正规海淘转运物流公司,大家的期望值在哪里转运费用,转运时间,被税概率
- 25岁应有的生活状态
- 睡前聊健康|心内、心外应是一家
- 咋在上海开一家类似!WANT POWER 这样的西式简餐店
- 怎样看待北京石景山无症状感染者确诊前曾多次破坏门磁报警器外出现已查到密接 204 人,她会被追责吗
- 怎样看待北京石景山无症状感染者密切接触 204 人接下来怎样防控
- UV镜哪些品牌的好 性价比高
