【卫生间】45平紧凑空间,来自莫斯科的装修风,充满了家的味道
【【卫生间】45平紧凑空间,来自莫斯科的装修风,充满了家的味道】
文章图片

文章图片

文章图片

文章图片

文章图片

文章图片

文章图片

国内房地产火热!房价涨了又涨 , 小户型成为了一股清流 , 成为广大朋友的无奈选择 , 装修就将成为打造舒适居家环境 , 最最最重要的环节!
不要“方” , 小户型也能装修出高品质 , 这份来自莫斯科的装修案例 , 足以再次唤醒你内心对未来的憧憬!
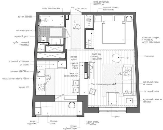
户型布置图【一居室公寓】
客厅使用了白色墙砖做背景 , 搭配浅色木质地板 , 典型的北欧风
电视墙面中间设计了餐饮吧台 , 紧凑的布置却充满了温馨的感觉
墙体墙面的白色墙砖艺术 , 好清新 。 床设计了收纳柜 , 合适的节约了空间!
房间不大 , 却一点也不压抑!
墙面还设计隐蔽式了储物柜!
像是一个十分神奇的避风港
过道
厨房
色彩搭配真的太棒了
吧台设计有储物空间 , 功能好齐全
阳台一侧
阳台一侧
浴缸外观房木质
卫生间也是这么有艺术范!这样的装修 , 巧妙的设计了很多功能性的储藏空间 , 入户、客厅、卧室、卫生间、厨房、吧台、休息阳台竟然都有了 。 完美的打造出了一个清新、舒适、温馨、功能齐全的居住空间 。
推荐阅读
- @卫生间选瓷砖,是全瓷砖还是陶瓷砖?分析它们的优缺点
- 「」本来还不理解,原来日本卫生间这里铺层石子,效果才是真的好!
- 『老年小妙招』卫生间墙面这样装,别提多实用了,占地空间少,增加收纳很方便
- :越来越多人这样做,让你家卫生间瞬间增大2㎡,回家照做
- 卫生间|卫生间和厨房可以装地暖吗
- 『』越来越多人卫生间装修不贴瓷砖了,不得不夸聪明,懊悔察觉太晚了
- 房子装修,一个卫生间是不是足够?
- 「」180㎡现代风小别墅,黑色皮沙发布置,简约的空间,瞬间显高级
- ##年轻夫妻的北欧风小家,没有造型的简洁空间不乏设计感,值得赞美
- 90空间|艳丽又时尚,美女穿搭红色吊带衫
