:600㎡现代轻奢,家庭影院、私人泳池,这种生活真是美滋滋

文章图片

文章图片

文章图片

文章图片

文章图片

文章图片

文章图片

文章图片

文章图片

文章图片

文章图片

文章图片

文章图片

文章图片
这是一套600多平的别墅装修案例 , 整体空间以高级现代的轻奢风格为设计主调 , 在大面积的可能更加基础下 , 营造华丽高档空间氛围的同时 , 还结合主人的生活品质 , 在家里装上了家庭影院与私人泳池 , 使得生活充满美滋滋的体验 。
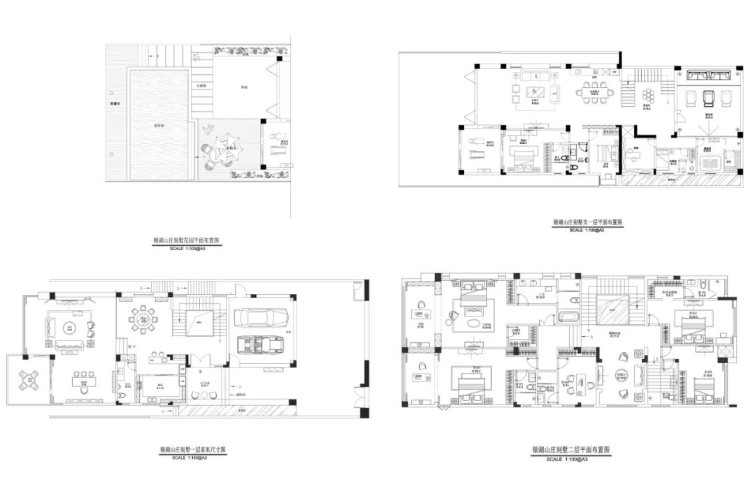
平面布置图
客厅
▲客厅电视墙是大理石为背景墙的设计 , 结合灯具与茶几上的金属质感装饰 , 营造出一种时尚优雅的轻奢视觉 。
▲大尺寸的多环金属质吊灯 , 也化解了空间过于宽阔的层高 , 提升了空间档次 。
▲墨绿色的休闲沙发椅 , 搭配黑色的不规则大理石茶几 , 也点缀出轻奢优雅的空间气质 。
▲细节处也是充斥着金属、石材等轻奢风的元素 , 搭配在别墅的空间里 , 显得档次而华丽 。
楼梯
▲楼梯间前还有一个小餐厅 , 这个位置还能作为休闲聊天功能区 。
【:600㎡现代轻奢,家庭影院、私人泳池,这种生活真是美滋滋】
▲楼梯在大理石质感的华丽基础下 , 中间的天井装上一盏超大尺寸的金属+水晶组合灯具 , 使得空间充满华丽精致的高级气息 。
推荐阅读
- 「」她的新房刚装修完,家里就门庭若市,现代轻奢简洁大气,时尚精致
- 「」115㎡现代华丽之家,多种风格元素,改造精装房,装出精致气质
- 『粉色』现代风格软装设计,高级灰+烟粉,让家的气质优雅!
- 结婚@美式轻奢风格,年轻人的最爱,让家中更有品味
- 我在广州,今年暑假去毕业游,想走出广东省,每人600准备玩3-4天,有没有好玩的地方介绍下
- [木工]她家全屋自己设计,装修轻奢风格,完工后效果还不错,给大家看看
- 「」180㎡现代风小别墅,黑色皮沙发布置,简约的空间,瞬间显高级
- 赵小小情感屋|我结婚闺蜜回礼600”,主动要回600反被骂,“闺蜜结婚随礼1200
- 福州哪家装修公司擅长现代简约风格
- @装修美式轻奢风格,墙上做护墙板非常喜欢,入户鞋柜非常实用!
