「」带庭院的中式别墅,占地一百多平,大家都可以建!

文章图片

文章图片

文章图片
“人生当有别 , 一墅见天下 。 ”
大家好 , 欢迎来到宇鸿建筑 。
目前 , 国内很多农村建的别墅越来越多 , 大多热衷走欧美路线 , 其余的也以东南亚风情或现代简约风格为主 , 看了太多的异域风情 , 确实容易让人产生审美疲劳 。 而且 , 看来看去 , 还是北京合院、徽派建筑和苏州园林最有韵味 。
【「」带庭院的中式别墅,占地一百多平,大家都可以建!】今天小编给大家带来的这套一百多平带庭院的别墅正是中式风格 。
白墙灰瓦的格调 , 无形中凸显出了主人书香雅苑的气息 , 在农村建一套这样的别墅 , 真的很有一种书香大家的意境之感 。
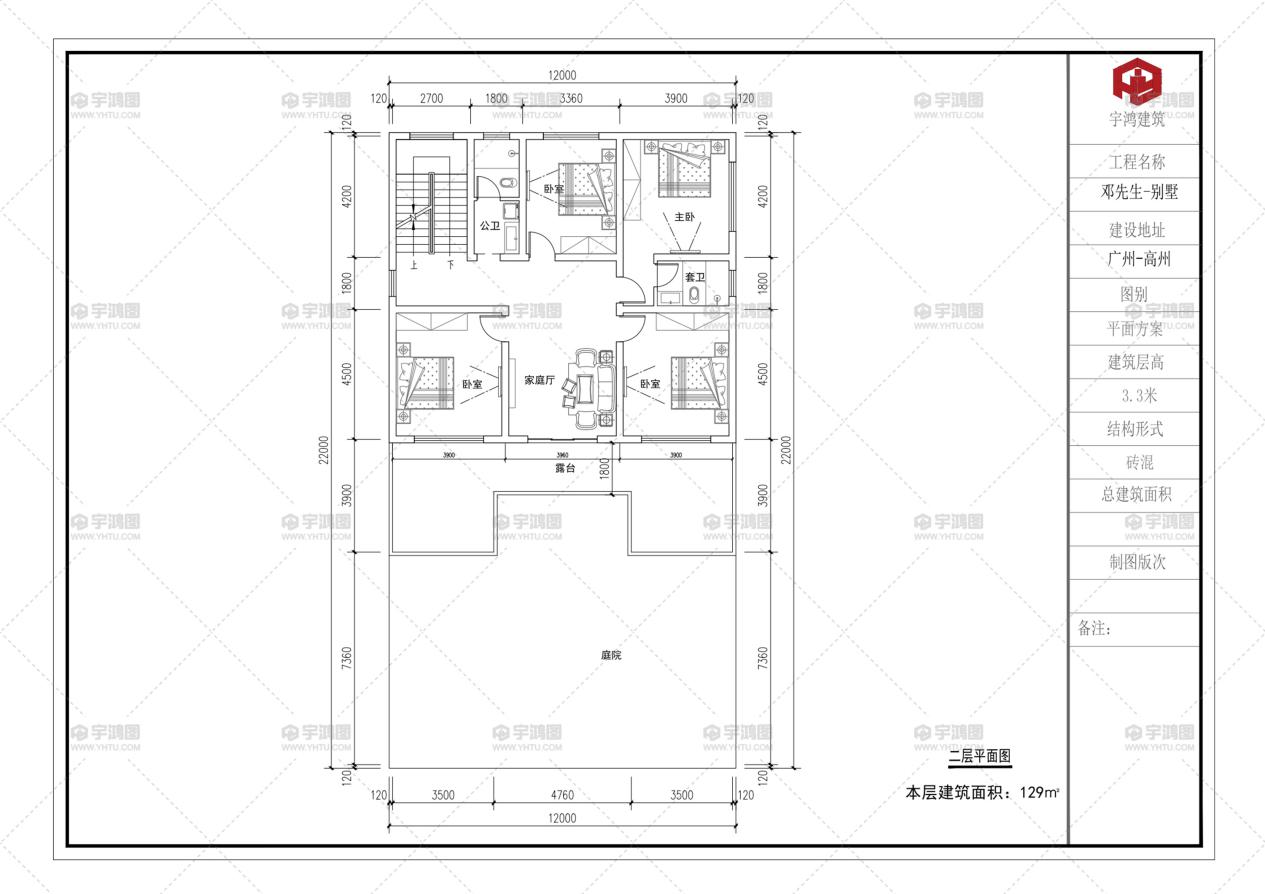
别墅的开间为12米 , 进深22米 , 主体的占地面积为129平米 , 整层的建筑面积为162平米 , 别墅的建筑结构形式是砖混 。
有一个很大的庭院 , 不止可以让小孩子嬉戏玩耍 , 还可以晒太阳喝喝茶 , 甚至还可以停车 。
这套中式别墅的平面设计图纸如下
一层从大门进去是一个庭院 , 门厅左右是茶室和厨房 , 进入大厅 , 左边是客厅 , 餐厅设计在厨房旁边 , 书房和杂物间也设计在一楼 。 还设计了一间带独立套卫的老人房 , 给家里老人居住 。
二层设计了四室一厅 , 主卧带独立套卫 , 家庭厅晚上还可以一家人坐在一起看电视 。 茶室和厨房上方设计成了露台 , 没事可以喝喝茶 , 晒晒太阳 。
三层只设计了一个主卧加衣帽间和一个独立套卫 , 其余部分是露台和观景台 , 站在观景台上眺望远方 , 别有一番感受 。
这样的一套中式别墅 , 第一眼是不是让你眼前一亮?
喜欢就赶快给自己来一套吧
关注我 , 我可以让你少花钱 , 建个更好的房子 。
推荐阅读
- 北欧家具|北欧和中式家具的区别有哪些
- []新中式拼的就是颜值+实力,粽情端午在此共享好时光
- 三级甲等医院与专科医院的区别
- 混搭@这才是最美混搭风,450㎡中式别墅,有山有园林,里面的泳池太美了
- 林中小鸟|简单营养易消化,纯中式,家常味!,一家四口的早餐
- 雅晟檀|新十大新中式家具品牌怎么选?
- 闲适红木|闲适红木:全球优选黑酸枝 原创新中式家具
- 『』买了个带小院的一楼房子,花34万装修完,被大家狂吐槽
- 新中式红木家具为何如此受欢迎|新中式红木家具为何如此受欢迎?东阳新中式品牌·恒达木业为您解惑
- ▲五层新中式豪华别墅,75万左右建成,家里再多的人也不怕住不下
