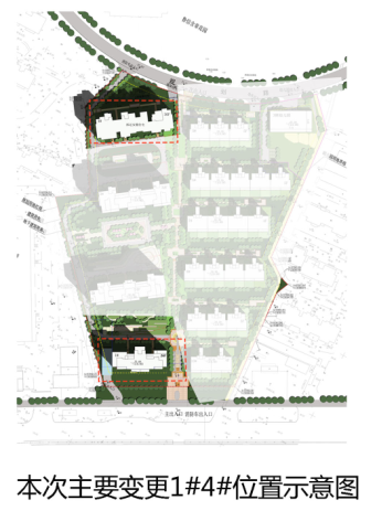
号楼青岛市辽阳东路5号改造项目规划变更 涉及1、4号楼
半岛采访人员 于红靓
28日,半岛采访人员从市自然资源和规划局获悉,辽阳东路5号改造项目规划变更批前公示,项目由青岛金浮苑置业有限公司、青岛浮山实业总公司建设 。
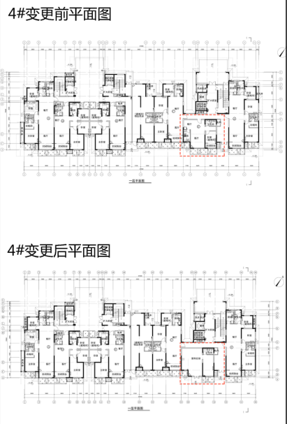
公示显示,辽阳东路5号项目已取得《建设工程规划许可证》, 规划建设10栋住宅,并配建一处3班幼儿园 。现根据图审等部门要求,对方案进行优化调整 。主要为:1#楼一层使用功能由商业服务网点调整为住宅,层高由4.5米降至3.55米 ;取消1#楼南侧地面停车位,变更后停车位指标满足规划设计要求 。4#楼一层1户住宅调整为便利店 。
文章图片
文章图片
文章图片
文章图片
文章图片
【号楼青岛市辽阳东路5号改造项目规划变更 涉及1、4号楼】另外,本次变更不涉及地上总建筑面积的变化 。
推荐阅读
- 平方米|辽阳一血栓病医院发生火灾 过火面积600平方米无人员伤亡
- 道歉|向社会、受害人及家属道歉,辽阳这个人致歉信登报了
- 高效|高效青岛建设攻势2.0版出台 青岛市税务局各项任务持续推进
- 住房|青岛市住房和城乡建设局召开防汛工作会议
- 金融机构|青岛市金融机构贷款利率持续创新低上半年为企业让利27.6亿元
- 27.6|青岛市金融机构贷款利率持续创新低 上半年为企业让利27.6亿元
- |无偿献血再出发!青岛市民涓涓热血支援湖北
- 家长学校|实地察看、面对面交流 青岛市妇联督导城阳区社区家长学校相关工作
- 首批市级标准化试点示范|青岛市首批市级标准化试点示范项目名单发布
- 青岛税务|高效青岛建设攻势2.0版出台 青岛市税务局各项任务持续推进
