『设计师』140㎡的四居室,不拘稳重更显品味,感受独有的美式柔情

文章图片

文章图片

文章图片

文章图片

文章图片

文章图片

本期案例
本案是一套四居室的房子 。 业主一直钟情于美式装修风格的房子 , 最舒适、休闲 。 向往美式的是喜欢它的不羁和自由感又或者那种随意的感觉表达出不随意的淡雅 。 这套房子没有夸张的造型;没有传统美式的那种端庄 。 静静地看 , 却会发觉它是那种温柔而温馨的美式 。
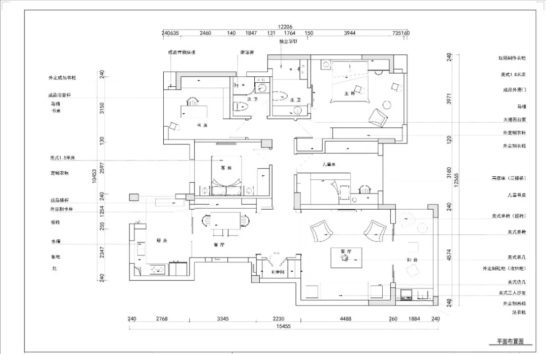
原始结构图
装修设计图
面积:140㎡
风格:美式
户型:四房两厅
预算:半包11万
装修团队:俞润空间设计
本案设计师
傅希
首席设计师
(擅长风格:日式、北欧、现代简约、新中式、轻奢)
少就是多 , 简洁就是丰富 。
设计亮点1、摒弃了传统美式的端庄气质 , 增加多彩的颜色搭配 , 为这个空间赋予更多轻松的氛围;
2、电视背景墙采用壁炉式的设计更加贴合美式风格;
3、屋内更多采用挂画装饰浅色系的墙面 , 整体搭配不失美式传统 , 也增加现代气息 。
客厅
客厅的墙面采用纯白色和米白色进行过渡 , 省去繁琐的吊顶 , 改做成精致的石膏线 , 搭配上亮色的沙发 , 放眼望去很有质感;木地板搭配棕色花纹地毯 , 散发出浓浓的美式风格 。 设计师拓宽链接客厅与阳台的门洞 , 搭配室内的浅色风格与简约设计让整个屋内大大增加了明亮程度 , 也增大了视觉空间 。
电视背景墙设计成一个壁炉的造型 , 线条简约流畅 , 看起来很典雅大气 。 搭配墙壁的挂画与地面铺设的复古感的地板 , 让整个客厅看起来更有品位 。
餐厅&厨房
介于房屋户型 , 设计师将餐厨设计为一体 。 餐厅简约的吊灯配合餐桌的位置 , 摆放上一束亮色的鲜花 , 为整个沉闷的环境带来一丝活力和精致 。
利用餐边柜的间隙做了卡座 , 合理利用橱柜设计 , 增强了整个空间设计 。 再摆放了一盏深色的木制餐桌 , 再摆放几把同样颜色的皮质椅子 , 显得端庄高贵 。
开放式的厨房结合餐厅的布局 , 一方面让整个餐厨空间独立起来 , 另一方面也变相增加了每个空间的布局 , 结合设计让整个空间不显得局促 。 浅色的橱柜设计搭配 , 墙面与地面的色块设计 , 让厨房风格更具轻松的氛围 。
卧室
钟情于美式风格 , 但也不想屋内设计太过繁琐 , 所以在主卧的设计上做到风格与使用并齐 。 床 , 桌椅等采用传统美式木头材质风格 , 而墙面的石膏线和壁灯等方面则采用更简约的方式 , 让整个卧室给人一种自然舒适的感觉 。 飘窗的设计为卧室增添情调 , 也让主人有惬意之所 。 整个卧室里也没有太多装饰品 , 点到即止 。
推荐阅读
- 女生,做了两年家装设计师,转到做工装,靠谱吗
- #设计师#这才是原木自然风,175㎡私宅设计,打造幸福美满的四口之家
- 三居室|老屋孕育生活趣味 文旅系轻柔住宅
- 国企下属传媒公司平面设计师该何去何从
- 【佛系】126m2现代三居室,都市白领的简约风,打造简单不凡的佛系雅居
- 「」全屋简约风,140㎡的家一眼就喜欢上了,家居氛围棒极了!
- 设计师林家道|设计师林家道:设计房子就是设计生活
- 【】89㎡三居室,厨房设计了内开窗,没想到效果这么好,真装对了
- 高端装修方面,国内智能化或照明控制方面有没有需求呢,设计师或业主是不是考虑在产品中融入智能元素呢
- 『鸡蛋』宝妈从140斤瘦到99斤,从不节食,常吃1道面食,好吃不长肉
