设计师|把55㎡小两居,愣装出了80㎡的既视感!只因设计师这两个好设计!

文章图片

文章图片

文章图片

文章图片

文章图片

文章图片

文章图片
把55㎡小两居 , 愣装出了80㎡的既视感!只因设计师这两个好设计!北欧风格是指一种以简洁流畅的造型 , 简洁明快的色彩 , 没有多余奢华装饰的装修艺术风格 , 以简洁著称于世 。 近年来 , 北欧风格因其简单的造型 , 干净的色彩 , 代表崇尚自然的简朴和归于宁静的生活而受到国内年轻人的追捧 。 最近 , 楼下邻居家小两口新装修的一套55平米小户型房子就是采用北欧风格装修的 , 原本比较拥挤的小两室在设计师的神级改造和精心设计下 , 变身为宽敞明亮、精致温馨的两室两厅 , 愣是装出80㎡既视感!不但小两口对装修十分满意 , 邻居看了也都说好 , 下面就和大家一起看看设计师是怎么设计改造的!
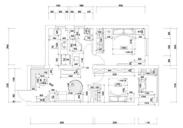
这套使用面积只有55平方米的小户型房子 , 为了合理有效利用空间 , 打造出简洁清新、色彩明快、精致实用的温馨的小屋 , 邻居与设计师商定并确认选用北欧风格进行装修 , 经过设计师如上图的精心设计和巧妙布局后 , 原本小小的空间立刻变身成了一个宽敞明亮、精致温馨的两室两厅 。
客厅
这套小户型一进门正对就是餐厅 , 没有独立玄关 。 客厅与餐厅相连 , 显得比较拥挤 , 因此 , 在一进门右手边定制了一个玄关鞋柜 , 方便家人出入换鞋 。 客厅的整体装修简洁明快 , 色彩和谐 , 没有过多装饰 。
【设计师|把55㎡小两居,愣装出了80㎡的既视感!只因设计师这两个好设计!】沙发背景墙上的挂画装饰很有特色 , 简约而又时尚 。 明黄色的布艺沙发色彩鲜艳 , 与客厅灰白色调成鲜明对比 , 给你以高贵、娇媚的感觉 , 使房间整体不压抑 。 沙发的右侧做一排墙柜 , 增加了大量的储物空间 , 柜门和吊顶均为白色 , 使房间形成视觉统一 。
为有效节省空间 , 客厅未放置茶几 , 电视背景墙为原色墙面 , 没有做任何装饰造型 , 电视机直接贴墙而挂 , 简洁明快不占空间 。 简单绿植的点缀为房间增添生机 , 提升家居品味!
餐厅
房子原来餐厅的空间很小 , 但为了能满足来客人时多人同时用餐 , 设计师充分利用墙面转角的空间 , 定制了个L型卡座 , 卡座上铺上柔软的坐垫 , 配上不同灰黄颜色的抱枕 , 既舒适温馨 , 又色彩和谐 , 更节省了餐厅、客厅的空间 , 这也成为餐厅改造的一大亮点 。
在餐厅与客厅中间 , 设计师设计了一扇精致小巧的推拉门 , 门内便是厨房 。 安装推拉门的主要目的就是有效利用空间 , 解决普通平开门开关占用空间的问题 。
推荐阅读
- 菁妈育儿|小两口带全家亲子装逛街,回头率真是100%,两胎生了六个娃
- 服装设计师小卷|乔欣透视黑裙抢镜,女明星走红毯谁最美?三十而已造型集体翻车
- MEFine觅范|上海近期值得看的时装展,细数Dior历任设计师
- 设计师|151平 现代简约私宅,低调奢华的设计!
- |家庭装修中,最不值当投入的是什么?
- 设计师|忍不住点赞!25个人性化的城市设计,设计者简直是天才!
- 设计师设计完产品(比如家具)后,是怎样生产的
- 设计师|设计师将1亿大楼设计得破烂不堪,网友却一致好评,这是为何?
- 设计师|上海发现一户人家,全屋打满实用柜子,设计风格还讲究到不行
- 设计师|花园院墙的设计思路与成果
