全都|2020年回村建房,这20套户型图火了,车库露台堂屋大院,全都有
今天咱们话不多说,直接给大家带来20套农村自建房户型图。
一共有20套,车库、露台、旋转楼梯、挑空客厅、堂屋、老人房等等,全都有。
就看大家怎么选择了,喜欢哪套户型,直接拿走开建。
2020年,回村就盖这样的房子!
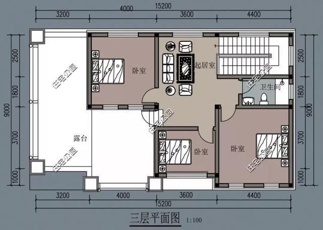
第一套:
占地尺寸:17.4m*11.7m
占地面积:198.44㎡
建筑面积:300.4㎡
总高度:10m
建筑情况:共设3室2厅4卫1厨1车库1书房2露台
文章图片
平面布局图:
文章图片
文章图片
第二套:
占地尺寸:16m*11.1m
占地面积:177㎡
建筑面积:401㎡
建筑高度:11.4m
建筑情况:共设6室2厅5卫1厨1玄关1棋牌室1起居室1电脑房1娱乐室1阳台2露台1车库
文章图片
平面布局图:
文章图片
文章图片
文章图片
第三套:
占地尺寸:16.8m*10m
占地面积:172㎡
建筑面积:272㎡
总高度:8.2m
建筑情况:共设5室2厅4卫1厨1起居室1堂屋1茶室1露台
文章图片
平面布局图:
文章图片
文章图片
第四套:
占地尺寸:18m*10.1m
占地面积:182㎡
建筑面积:365㎡
建筑情况:共设5室4厅4卫1厨1茶室1书房2衣帽间1阳台
文章图片
平面布局图:
文章图片
文章图片
第五套:
占地尺寸:17m*10m
占地面积:156㎡
建筑面积:298㎡
总高度:8.2m
建筑情况:共设4室2厅2卫1厨1堂屋1书房1起居室1储物间1露台1走廊
文章图片
平面布局图:
文章图片
文章图片
第六套:
占地尺寸:15.2m*9m
占地面积:149.8㎡
建筑面积:390.29㎡
总高度:12.7m
建筑情况:共设6室4厅3卫1厨1棋牌室1休闲娱乐1ktv包房3露台
文章图片
平面布局图:
文章图片
文章图片
文章图片
第七套:
占地尺寸:15.2m*8.72m
占地面积:133㎡
建筑面积:133㎡
总高度:6.2m
建筑情况:共设3室2厅1卫1厨1玄关1衣帽间1外廊
文章图片
平面布局图:
文章图片
第八套:
占地尺寸:15m*10m
占地面积:156㎡
建筑面积:390㎡
总高度:10.6m
建筑情况(单户):共设5室2厅2卫1厨2起居室1书房1阳台2露台1车库
文章图片
平面布局图:
文章图片
文章图片
文章图片
第九套:
占地尺寸:18.8m*10m
推荐阅读
- 山东|探索青年学生助力乡村振兴新模式,2020年“清华学子山东行”圆满收官
- 标准地图|2020年标准地图发布, 一点都不能错!
- 2020|青岛银行公布2020年中期业绩: 资产总额超4405亿元 持续稳健增长
- 2020|扩散周知!自然资源部:2020年标准地图发布
- 同程|同程艺龙2020年上半年营收22亿元,王强调任首席运营官
- 第一弹|万茜李沁江疏影,全都红不了?
- 转存!自然资源部发布2020年标准地图
- 自然资源|转存!自然资源部发布2020年标准地图
- 教育|澧县小渡口镇中学举办2020年教师暑期培训班
- 心连心|“心连心”慰问演出赴湖南十八洞村
