|106㎡北欧风,沙发墙设计成吧台,好看又实用

文章图片

文章图片

文章图片

文章图片

今天齐家小菜为大家分享的是一套面积106㎡的装修案例 , 整体以北欧风格设计 , 配色以白色为主 , 加入原木与绿植的点缀 , 打造出通透明亮又充满生机的小窝 。
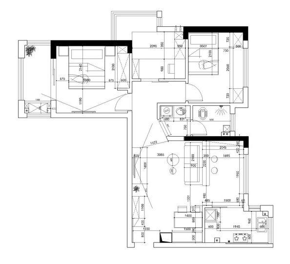
户型图
玄关设计比较简单 , 安装一整面白色护墙板 , 墙上木质挂勾不仅时尚还实用 , 挂衣服挂包包都非常方便 。
【|106㎡北欧风,沙发墙设计成吧台,好看又实用】
玄关进来就是一个小小的餐厅了 , 一张原木的餐桌 , 设计师采用卡座设计 , 让小小的空间也有满满的温馨感 。
客厅通铺木地板 , 简易时尚小桌子 , 点缀了整个客厅 , 打造原木色矮墙作为吧台 , 同时也是沙发墙 , 又可以当作临时休闲区域 。
小吧台可以做临时书房 , 或者是小两口边喝喝饮料 , 小酒 , 还能看美剧 。
厨房采用黑白色 , 干净整洁 , 上下两排的收纳柜 , 完成满足厨房的收纳问题 。
卧室浅蓝色墙面 , 实木床搭配灰色床品 , 保留一份安静的韵味 。
书房还有一个小飘窗 , 可做临时客房 , 或者是儿童房
卫生间将洗手台外移 , 做三分离设计 。 金色铁艺圆形挂镜 , 充满了北欧格调 , 复古又时尚 。
(我们致力于保护作者版权部分作品来自互联网.无法核实真实出处如涉及侵权请直接联系小编删除.谢谢!)
推荐阅读
- 比较中意一款实木布艺沙发,如图,黑色框架,哪位好心人知道购买途径吗
- |116㎡北欧风格设计,复古加精致!
- 二十多岁,与父母同住。家里换沙发,衣柜等,所选的款式、舒适度等等应不应该跟自己商量一下
- 家具|沙发颜色如何搭配 沙发靠垫如何搭配
- 当代中式家具沙发|当代中式家具沙发哪个品牌好?
- 布艺沙发咋辨别好坏可以换面吗
- 湘潭家装周|艺术感中带有一些精致,文艺北欧风
- |经典双层简欧风别墅,咱农村人建得起的好房子
- 庆云县广播电视台|拒绝做个“沙发土豆”,健康提醒:这个暑假
- 软装|你家离真正的北欧风,还差了这些家具
