棚改|市北海岸路36号棚改安置用房集中建设地块施工图变更
半岛采访人员 于红靓
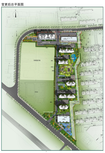
10日,半岛采访人员从市自然资源和规划局获悉,市北海岸路36号地块改造项目施工图变更批前公示,项目由青岛中海海岸置业有限公司建设 。从项目总平面图看,项目规划6栋19F~34F住宅楼、1栋3F商业、1所九班幼儿园等 。
文章图片
【棚改|市北海岸路36号棚改安置用房集中建设地块施工图变更】
文章图片
此次施工图变更,结合景观设计,优化地上车位布局(总车位数不变) ;5#楼、7#楼间增设围墙;4#楼南侧增设景观廊架;6#楼西侧增设消防扑救面;幼儿园增设消防应急出入口 。另外,结合立面设计,变更住宅立面格栅造型 。
文章图片
文章图片
项目在青岛市自然资源和规划局政务网站、青岛规划展览馆公示区(东海东路78号)及项目现场公示,公示时间为2020年8月10日~2020年8月18日,其中现场公示时间为2020年8月14日,有意见者可通过青岛市自然资源和规划局政务网站及公示现场意见箱反馈,咨询电话:0532-85642129 。
文章图片
文章图片
采访人员查询获悉,2018年11月26日,青岛中海海岸置业有限公司以总价约99611.46万元摘得市北海岸路36号地块,成交楼面地价为7800元/㎡ 。该项目为市北区棚户区改造安置用房集中建设地块 。
推荐阅读
- |浮山新区街道举行“市北·浮新民族之家”启动仪式活动
- 市北|百场文化盛宴,悦动时尚市北!
- 浮山|浮山新区街道开展“市北·浮新民族之家”启动仪式暨民族政策知识宣传活动
- |青岛市北区卫生健康局构筑公共卫生防护网 抓好常态化疫情防控
- |小岗位大奉献 市北区敦化路街道志愿者为创城添光彩
- 合肥路街道|市北区合肥路街道 掀起垃圾分类宣传实践活动新热潮
- |沪青联动的区市“先行军”,为什么是市北?
- 张贴|夫妻俩流窜张贴小广告 青岛市北区兴隆路街道执法部门:谁张贴谁清理
- 好戏连台|市北点亮“文化之夜” 居民家门口奉上百场文化盛宴
- |市北区兴隆路街道开展垃圾分类知识专题讲座
