|这是我见过最实用的35㎡两房,三分离的卫生间,超大衣帽间,羡慕

文章图片

文章图片

文章图片

文章图片

文章图片

文章图片

文章图片

文章图片

文章图片

文章图片

文章图片

当下生活的品质提高 , 越来越多人意识到房子的重要性 , 买房的热潮也从不间断 , 在一线城市中 , 小户型和公寓最受年轻人的追捧 , 空间不大 , 利用率超高 , 该有的功能一个不少 , 一个人居住十分惬意 。 接下来分享的案例位于南京 , 35㎡的复式 , 屋主一个人外加三只小猫 , 大面积的隐藏储物柜 , 搭配极简的设计 , 让全屋看不到一点杂乱的样子 , 三分离的卫生间 , 多功能房 , 让生活更舒适更自由 , 我们一起看看装完的效果吧 。
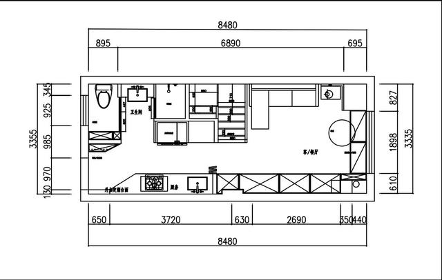
一楼平面图
这是一套4.6米层高的LOFT公寓 , 很常见的“一字户型” , 一楼布置成休闲区 , 包含会客、用餐、洗衣、做饭、逗猫等功能 , 一整面的储物柜 , 楼梯下空挡也利用上 , 才让整个空间保持干净清爽 。
二楼平面图
二楼同样是大面积的收纳柜 , 进一步提高小户型的收纳能力 。 楼梯两侧分别布置成卧室和多功能房间 , 利用隐形门设计 , 从一房变成两房 , 朋友来了也有临时住的地方 。 既保证了私密性 , 也不占空间 。 平时折起来 , 还能保障通风和采光效果 , 提高生活品质 。
玄关
入户即是玄关 , 玄关柜设计是一个亮点 , 为了让空间显得不拥挤 , 做了斜切设计处理 , 小小储物柜足够满足日常换鞋需要 。 中间留空 , 可以放置钥匙、包包等小件物品 , 装上灯光就具备展示功能 。 地面铺上瓷砖进行区域划分 , 减少了灰尘带进室内 , 底部挑高设计 , 放置一双拖鞋 , 十分方便 。
厨房
推荐阅读
- 幸运番茄|万里挑一,你见过几句?,九月简短唯美的优质晚安心语
- 多情种子无情苗|你家的彩礼还是拿去装修吧”,“房就是我家的诚意”“房子我有
- 文竹妈妈|网友直呼可爱,你见过幼儿园小朋友“军训”吗?萌娃穿上迷彩服后
- 故人离|都有这六点特征,心理学:真正见过世面的人
- 经常发现别人不懂我的意思是我的问题吗
- 追freedom|为什么生活需要仪式感?这是我听过的最好的答案
- 雨萌萌|就是我对你设置了特别关心,你却对我设置了访问权限,距离
- 太极本草|见过吗?能疏风清热,舒筋止痛,书带蕨
- 为啥感觉到自己对一些问题的情感态度和身边的不少朋友亲人完全不一样是我太麻木冷漠了吗
- |这算是见过最赞的小户型装修了,功能齐全还好看,恨不得天天在家
