|双拼三层小洋楼,大落地窗搭配排水屋顶,建在农村再合适不过!

文章图片

文章图片

“建筑传承文化 , 宇鸿筑造世家 。 ”
大家好 , 欢迎来到宇鸿建筑 。
简欧风格继承了传统欧式风格的装饰特点吸取了其风格的“形 神”特征在设计上追求空间变化的连续性和形体变化的层次感 。
今天小编给大家带来的是这套颜色双拼的三层简欧别墅 。
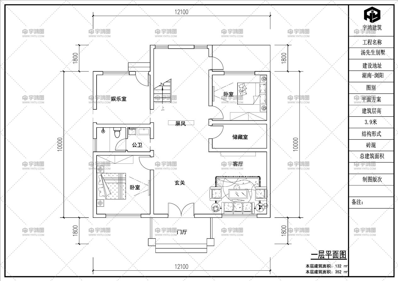
别墅的开间为12.1米 , 进深为10米 , 占地面积132平米 , 建造的结构形式是砖混 。 立面装饰采用的是米黄色真石漆搭配橙黄色面砖 , 这样的外装使整栋别墅看起来更加的层次分明 , 结构立体 。
斜坡式的屋顶设计可以做到有组织的排水 。 再加上大落地窗的设计 , 整体的采光、通风都比较好 , 三层两边都有露台 , 适合晒太阳 , 喝茶 。
附上平面设计图纸:
一层从门厅进入就是玄关 , 复式客厅设计在右边, 左边是一间卧室 , 然后是公卫和储藏室 。 中间放置了一块屏风 , 后面是楼梯间 , 左边是一间娱乐室 , 右边是一间卧室 。 厨房和餐厅 , 主人单独建在了外面 。
二层从楼梯间上来是过厅 , 正对着起居室 , 另外还有三间卧室 , 主卧带独立套卫 。
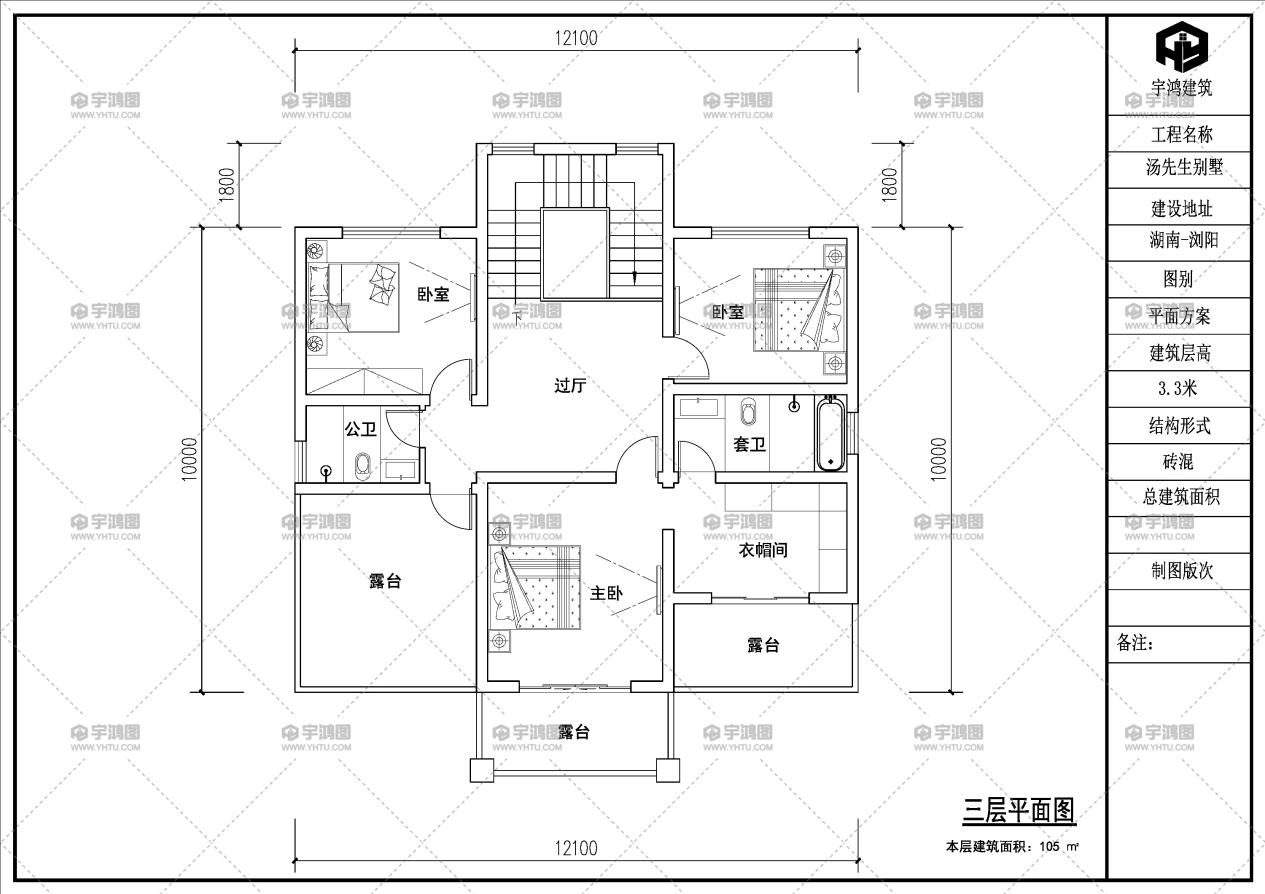
三层只设计了三间卧室 , 主卧带衣帽间和独立套卫 。 另外两间卧室共用一个公卫 , 外面还有一大两小三个露台 。
只要你有地 , 这样的一套颜色双拼的三层简欧别墅 , 建在农村 , 你就是整个村里最靓的仔!
【|双拼三层小洋楼,大落地窗搭配排水屋顶,建在农村再合适不过!】点赞关注 , 我可以让你少花钱 , 建个更好的房子 。
推荐阅读
- |欧式三层别墅,占地99平,低调又奢华就属这一套,百里挑一的精品
- 沙雕千里|你做到了哪一种?,取悦自己的三层境界
- 220平三层复式房,40W装修预算有可能实现吗
- |适合农村自建的三层简欧别墅,主体造价20万,邻居看了都羡慕!
- 臣独幽|自然、社会、自我的三层逻辑
- |8×9米占地仅79平,开放客厅+屋顶露台,简欧风三层农村小宅
- |2栋宽14米左右的双拼房,都是平屋面设计,未用罗马柱也很美观
- 我有一个梦想
- |12×11米现代风三层别墅,挑空客厅、屋顶凉亭全都有
- 娱乐醉娱乐|人生就这三层楼(说得真好)
