|三代人的50㎡小户型,三室一厅+独立衣帽间,老破小逆袭小豪宅!

文章图片

文章图片

文章图片

文章图片

文章图片

文章图片

文章图片

文章图片

现在小户型越来越多了 , 说白了这都是房价闹的 , 如果不是房价过高 , 谁又愿意住小蜗居呢?特别是一家四口 , 三代同堂挤在一个50㎡的破旧房子里 , 不仅采光通风问题差 , 而且各种安全隐患也都很多!这样的居住环境 , 的确不太适合这么多人住 。
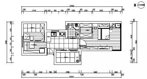
今天齐家安安要分享的是一套 50㎡老破小改造 , 业主一家三代住在这里 , 经过设计师改造后 , 拥有三室一厅+独立衣帽间 , 老破小逆袭小豪宅!下面跟随齐家安安一起来看看!
玄关只放了一个下翻式鞋柜 , 简易的换鞋凳和挂衣架 , 空间虽小 , 但功能十足!
餐厨一体化设计 , 靠墙打造了折叠餐桌 , 作为简易的用餐区 。 平时餐桌收起来 , 不占用过道空间 , 很方便灵活 。
开放式的厨房设计 , 采用L型的厨柜布局 , 提供充足的收纳+操作空间 。 白色墙砖+柜体 , 搭配灰色台面 , 看起来干净大方 。
儿童房墙面全部都是软木板上墙 , 起到了静音和防潮的作用 , 有利于孩子的健康成长!墙面还设计了壁龛 , 增加收纳空间的同时还不占用空间 。
定制的地台加高设计 , 即能放得下床垫 , 还能放得下一个坐垫 , 在床边设计一个上墙学习桌 , 睡觉和学习的区域就都有了!很方便!
卧室一进门看到的是一个到顶的开放式置物柜 , 放些书籍和装饰品 , 看起来很雅致 , 但其实这个位置如果做成封闭式柜子 , 可能收纳能力会更强一些 。
主卧为了增加空间面积 , 将原来阳台非承重墙的部分砸掉了 , 这样卧室就变得宽敞明亮许多 。
床头还有个小小的梳妆台 , 搭配圆的梳妆镜 , 美观实用 。
白色折叠门后就是步入式衣帽间 , 利用平行设计 , 在两边的墙面分别打上了两个收纳柜 , 一个收纳柜的收纳力就相当于原来的一个衣柜!还有可折叠的穿衣镜 , 超人性化的设计 。
阳台设计成洗衣晾晒的空间 , 定制的柜体 , 将洗衣机与洗手台加入进来 , 充分利用空间 。
卫生间 , 整体以经典的黑白配为主 , 通过玻璃淋浴房做干湿分离 , 给人一种干净整洁的感觉 。
推荐阅读
- 农人那点事儿|能成为女强人的三大生肖女,有你吗?,再苦再累也不指望男人,
- 吃货老崔|财运开花,赚得大笔财,鸿运羡煞人的生肖!,今后半个月好运上行
- 诗安星座占卜|也容易移情别恋的星座,容易心动
- 怎样坦然的接受别人的拒绝
- 故人离|都有这六点特征,心理学:真正见过世面的人
- 咋看待有些人专门反对别人的想法
- 星了个星座|幸福三代,福气临门,家里若有这几个生肖
- 育儿纪录者|和女儿、孙女三代同框,网友:完全是共用一张脸,张咪基因太强大
- |小户型客厅这样装修真加分,不愧是门面担当,颜值简直太逆天!
- 萌蒂美食说|配这道菜,得多吃一碗米饭,没胃口吃就吃这道菜?重口味人的福利
