|2栋带地下室设计的别墅,豪华气派,一看就是家境殷实

文章图片

文章图片

文章图片

文章图片

文章图片
现在的人都非常低调 , 明明很有实力 , 偏偏就低调的不让别人知道 。 我觉得 , 做人低调一点没有错 , 但有时候该高调还是要高调一点的 。 就比如在老家盖房子 , 有这个能力盖一栋豪宅 , 就该显现出来 , 难道下面这两款带地下室设计的别墅户型不气派吗?
01
基本信息:13.36×14.1米 , 占地面积183.68平方 ,砖混结构 , 外观用文化石和浅黄色真石漆装饰 , 屋面处配红瓦 。
平面图:地下室做车库、娱乐室等 , 有电梯方便上下;一层设一室两厅一厨两卫 , 挑空客厅配旋转楼梯 , 二层设两室一厅三卫和一个书房 , 每间卧室内都带私卫 , 室外配休闲阳台 , 三层三室一厅三卫 , 室外配休闲大露台 。
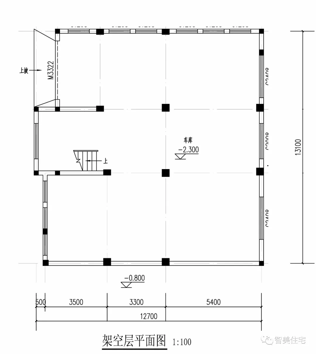
02
基本信息:12.7×13.1米 , 别墅非常气派 , 外墙面用小面砖和浅色真石漆装饰 , 这栋别墅的窗户设计很有特色 , 屋面处用蓝瓦铺装 。
平面图:地下室做车库和储物用 , 一层设一室两厅一厨一卫 , 配有休闲茶室(娱乐厅空间) , 二层设两间卧室 , 都是套卧 , 卧室内配置全生活便利 , 三层的布局与二层相同 。
【|2栋带地下室设计的别墅,豪华气派,一看就是家境殷实】豪宅就是不一样 , 在老家盖豪华别墅的日子仿佛人生到达了巅峰 , 享受着全村人的羡慕 。
推荐阅读
- 设计师|瑜伽老师的极简之家,简约不简单,精神和物质的双重满足
- 鬼马时尚精|体重过百都不敢尝试,程潇的裤腰设计是啥操作?交叉形式不显勒
- 宇之轩|让下半身比例更显修长、更有美感,上衣和裤子都采用了高腰设计
- |她125㎡的房子,一进屋仿佛整个人都放松了下来,餐厨设计最有品
- 宇思轩|姑娘的裙身穿牛仔裙,设计成A字裙,修身效果非常好,路人街拍
- 娱乐大爆料|露腰设计很撩人,梁洁的笑脸好清纯啊!穿樱桃印花套装奼女感十足
- 博物与设计|邻家小妹夏美酱带来日常系的小清新穿搭,跟着时尚博主学穿搭
- 腿长168|成都毛戈平形象设计特色班期中新娘平面作品
- 宇之轩|裙子收边用黑色勾勒,设计感很精致,穿搭小心思来了
- |家里装修,入户门与左右墙处同一水平线,鞋柜应该怎么设计?
