围观|新农村轻钢房屋!这6种三层别墅,修好全村都来围观!
现在很多农村轻钢结构的别墅都很常见了,不仅抗震,而且隔音隔热也比传统砖混的强得多!根据我们以往的项目来看,如果建一栋150平的带装修也才不到三十万,也就是相当于在城里给个首付款!下面为大家分享几组三层户型图,充分利用好宅基地,喜欢就收藏起来吧!
1
占地尺寸:11.7米x10.2米
占地面积:120.26平方
建筑面积:311.43平米
文章图片
文章图片
文章图片
文章图片
2
占地尺寸:开间13.48米 进深10.48米
占地面积:137平方米
建筑面积:452 平方米,
文章图片
文章图片
文章图片
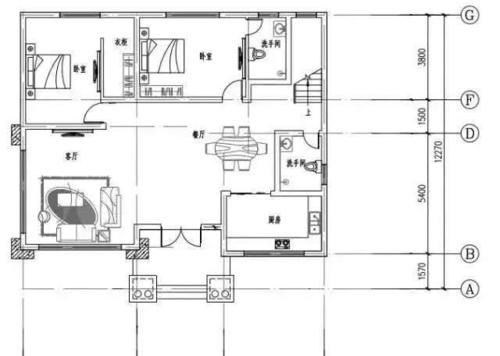
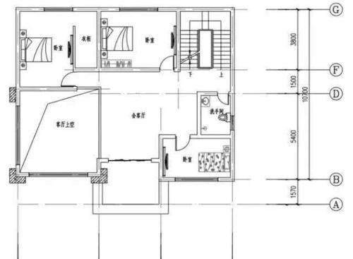
3
占地尺寸:开间:13.5米,进深:12.27米
占地面积:144.32㎡
建筑面积:405.21㎡
文章图片
文章图片
文章图片
4
开间:12.24米
进深:10.24米
文章图片
文章图片
文章图片
文章图片
5
开间:10.64米
进深:9.94米
文章图片
文章图片
文章图片
文章图片
6
开间:12.24米
进深:12.9米
文章图片
文章图片
【 围观|新农村轻钢房屋!这6种三层别墅,修好全村都来围观!】
文章图片
文章图片
推荐阅读
- 农村|赵丽颖切肉切到手抖 农村出身的赵丽颖备受网友好评
- 农村的小林|俗话说“深耕浅种苗来旺”,为啥很多人还在选择旋耕呢?
- 乡村波比|野猪被禁止食用,农村野猪泛滥,糟蹋庄稼,该如何解决?
- 服务中心|泰安市房产管理服务中心选派“加强农村基层党组织建设”工作队员
- 两须的猫|院线电影90%取景温岭,盛大开机,男女主颜值超高,快来围观
- 农村|队友嘲讽耀神是“农村人”,耀神霸气回应:我就是农村人,怎么样!
- 小学|一名农村小学足球女校长的喜与忧
- 足球|一名农村小学足球女校长的喜与忧
- 人生|他是《变形计》最清醒的农村娃,把节目当游戏,如今人生完美逆袭
- 直播|两场直播累计围观量超 270 万三盛总裁直播引行业关注
