房子|450平米房子奢华风装修,融入各种经典装修元素,别墅美翻了
450平米别墅的房子应该怎么装修呢?小编给大家介绍一套特别成功的案例——北辰墅院1900小区,本套案例将450平米的房子设计成奢华别墅,简单大气。业主采用的方式,装修费用仅花了135万,让我们一起来看看装修效果吧!
生活的品质感体现在各个方面,同时也体现着客户对生活的感悟。本案的原建筑结构有着诸多的不适之处,改造方向也比较多,通过对业主的详细了解,我从业主的生活方式出发,将原有的垂直交通空间改到了餐厅位置,使得客厅卧室等空间都最大的扩充出来;将原有户型的中庭空间加建出来,形成了独立的餐厅空间,同时也让原有的厨房,卫生间和老人房都扩充和整合了空间,使得动线和尺度都非常舒适。功能的完善是对建筑的改造规划,对造型的细致处理,精心雕琢,更是对业主生活品质的一种提升。
客厅在家庭空间中的占地面积是最大的,也是家庭居住的核心区域,是最能体现装修风格的区域。客厅的特点是面积大,空间开放性高。明确客厅风格是非常重要的,如果连客厅都表达不出家庭装修风格,那这样的家庭装修绝对是失败的。
文章图片
配色上以高级灰为主色调,使空间清透恬适,用明黄和湖蓝等色冷暖呼应,调和空间的对比,丰富视觉感受。
文章图片
采用法式的古典墙面元素,迎合新古典的家具,配合轻奢的装饰物件,营造了华贵,舒适,时尚的古典轻奢的风格。
文章图片
二层起居室,是留给大人和孩子相处的独立空间,是家人交流的最佳场所。延续空间整体风格,采用轻奢风格家具,配合活泼跳色,营造轻松休闲的空间氛围。
卧室是人们休息的主要处所,卧室布置得好坏,直接影响到人们的生活、工作和学习,所以卧室也是家庭装修的设计重点之一。卧室设计时要注重实用,其次才是装饰。卧室的装修还要注意它的颜色搭配以及材质选择,一起都要以舒适为主。
文章图片
一层的老人房随处在光线较差的方位,但是通过规划,增加了整面的落地窗,与庭院景观相对,让此房间的舒适度大大提升。
文章图片
二层主卧将新古典元素与轻奢家具融合搭配,使得空间品质感很高,造型沉稳大气,同时背景墙的处理又细致入微
文章图片
男孩性格活泼开朗,对自己的喜好非常明确,喜欢自然的空间氛围,所以在孩子的房间上大胆的采用了整幅的壁画作为一进门的视觉中心,让空间的丰富度融入自然的感觉随之增加。
文章图片
三层主卧空间较之二层主卧缩小了一些,但是依然规划的非常舒适,色彩上采用更加轻快的乳白色为主色调,让空间有视觉的扩大感。同时依然延续新古典造型的墙面元素,增加细节,增强品质感。
家庭餐厅装修墙壁用什么材料?一般来说用乳胶漆比较普遍,这类材料具有良好的肌理效果,价格也比较低廉。也有人会采用墙布装饰,增加家庭餐厅的艺术效果,装饰效果出众。
文章图片
餐厅与客厅以虚隔隔断为屏,交相呼应;餐厅空间规划成对称形式,使得空间沉稳华丽,圆形造型天花更显空间高挑舒适
书房的目的是让人安心静心阅读、能够有较高的工作效率和学习效率。因此这个空间的装饰物不宜太多,同时也不宜太花哨。否则容易出现喧宾夺主的情况,会分散居者的注意力,让人无法安静。而一些亮色,如红色、橘色等会使人心浮气躁。
文章图片
三层的书房因势利导,增加电梯后使得书房空间更加私密,以浅色灰色柜体和墙面衬托古典的书桌灯饰,突出中心
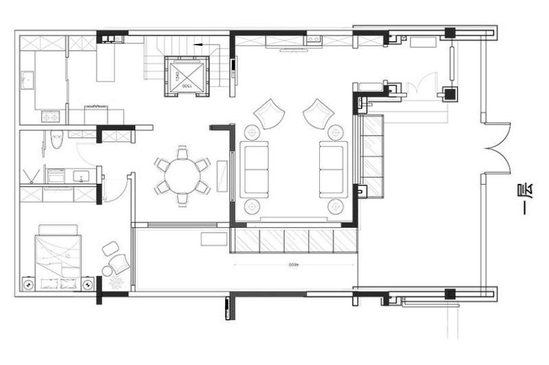
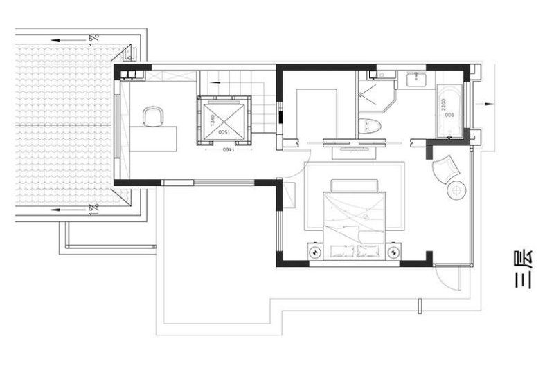
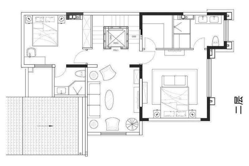
以下就是本套北辰墅院1900小区450平米别墅房子的户型图。
文章图片
一层空间扩展后,入口门厅尺度亦是随之扩大,将原入口位置外移,增加门厅空间,拓展鞋帽空间。将老人房原窗子位置去掉,拓展出房间入口通道。使空间功能更加合理。卫生间位置扩大,入口位置更加合理。加建了餐厅空间,使餐厅空间更加独立合理。
文章图片
三层空间得到拓展后,房间尺寸更加合理,书房空间客户要求不大,所以没有加建出独立空间,保持了露台的空间。为美妙的露台烤肉PARTY保留了施展空间。
文章图片
将原有楼梯位置调换,至原餐厅位置,并增加了贯通5层的电梯,使得空间动线更加合理,客厅空间更加开阔,卧室空间更加完备。
推荐阅读
- 熊猫娱乐|张纪中为女儿办满月宴,一家五口超幸福,别墅外景曝光太奢华
- 生活放大镜|2021年起,农村老房子一律按“新规”办,户口更加值钱!
- 房子|秦霄贤刚被咬完耳朵,又与辛雨锡互动,德云社房子又塌了?
- 建筑|为什么沙漠的沙子不能用来建房子?
- 父母|“你有钱,给弟买套房子不行?”父母的偏心,伤害了多少孩子的心
- 离婚|离婚,房子怎么分?法官给出一个计算公式!
- 农村|30年后, 最值钱的东西不是房子, 是这3种, 而且全部都在农村!
- 朱之文 |大衣哥儿媳生活照首曝光,长相伶俐旺夫,奢华彩礼豪气十足
- 朴树 |带你看看朴树住的豪宅,连房子都是租的,钱都投进音乐事业了
- 资本|梁文道:遍地的奢华与奇缺的教养
