这套86平米的二居室,最后还是选定田园风格,效果竟远超预期( 二 )
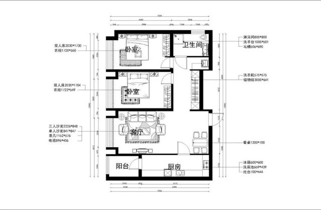
以下就是本套保利香槟国际小区86平米二居室房子的户型图 。
文章插图
本案为保利香槟国际两室两厅一厨一卫86㎡户型 , 各个房间的形状都较为方正 , 有着良好的采光和通风环境 , 不过其缺点在于 , 餐厅位置面积狭小 , 不利于该区域的设计 , 卫生间以及厨房的面积狭小 , 不利于家具的摆放 , 阳台空间狭小 , 无法作为活动空间 , 也不利于摆放家具和储物功能 , 浪费空间 。
房子也许不大 , 但生活却不能受到局限和影响 。 保利香槟国际的这套二居室案例 , 用田园风的装修实现了业主梦想中的舒适健康家 。 10万的装修预算不多不少 , 既体现出房屋主人所具有的文化内涵 , 又表露了生活理念 , 最终交出了一份满意的装修答卷 。
推荐阅读
- 我家135平三居室,简约装修风格,美翻了
- 意想不到的神奇效果,86平米的二居室,现代风格只花了7万,太值了
- 闺蜜家128平米,装修只用15万!三居室太合适有没有
- 欧式风格的145平米的三居室装修成这样,亲朋好友都艳羡
- 这套118平米的三居室,最后还是选定法式风格,效果竟远超预期
- 88平米房子现代风装修,融入各种经典装修元素,二居室美翻了
- 二居室的中式风装修大概需要多少钱?这套71平米的装修案例值得借鉴
- 143平米的三居室要怎么装修才出其不意,选择复古风格准没错
- 110平米房子美式风装修,这样的二居室简直是绝美,良心老师傅亲自打造
- 90后教你如何用8万元装修出90平米的房子
