75平米现代风格好不好?装修价格只花了35万
【75平米现代风格好不好?装修价格只花了35万】关于装修你有什么想法 , 35万的预算你能装修出什么样的房子呢?京北华侨城有套75平米的二居室 , 房屋的装修效果绝对超乎你的想象 , 现代风的选择 , 给这套房屋的装修增色不少 。 同时也和大家分享一些装修注意事项和技巧 , 赶紧来看一看吧 。
主人喜欢摄影 , 女主人喜欢吉他 , 二人曾经都超级喜欢周杰伦 , 收藏了周杰伦最早时期的磁带专辑 。 屋主的职业也是设计 , 比较喜欢简约去繁就简的设计理念 , 对自己的家也是如此 , 简洁温馨 , 同时又希望能够有足够的收纳空间 。
有些人装修的时候会考虑客厅装修风水 , 如果一进门发现横梁压顶那确实一个不好的设计 , 在风水学来讲 , 客厅的横梁会给人产生一种心理压抑感 。 建议在装修的时候可以使用天花板或者悬挂饰品加以化解 , 如果面积够大 , 也可以以横梁为界设计成两个客厅 。
文章插图
利用厨房与玄关过道处 , 定制一个餐桌 , 既是吧台也是餐厅 。 上方悬挂屋主淘来的艺术吊灯 , 暖色灯光烘托满满的温馨氛围
卧室装修主要讲究一个和谐性 。 一个美观又温馨的客厅 , 首先还是离不开设计 。 因为合理的设计能将每个犄角旮旯都充分利用上 , 而且也只有合理的设计才能打造出更合适的造型 。
文章插图
主卧整体以清新的蓝色和白色为主色调 , 辅以姜黄色跳色搭配 , 提升空间层次感 。 卧室上方白色羽毛灯 , 打造温馨的睡眠氛围 。
卫生间是家中特别潮湿的区域,为了确保家人的安全,大家最好选购大品牌的开关 。 主要是因为开关的使用频率高 , 对品质的要求也高 , 并且开关一般安装在显眼的位置 , 要求装饰效果也要出色 。 另外 , 由于卫生间较潮湿 , 所以卫生间插座安装时一定要注意防水、防溅 。
文章插图
卫生间安装集成防水吊顶 , 延长房屋硬件的使用寿命 。 通铺水磨石地砖 , 更加耐脏 。 黑色窄边长虹玻璃门 , 既保证隐私又不影响走廊的采光 。
装修厨房时 , 尽量多留些插座 , 以备不时之需 。 比如:微波炉、烤箱、消毒柜等 , 可以考虑嵌入式设计 , 既省空间又整洁 。 从油烟机的选择上 , 可以根据个人习惯 , 但必须保证强大的吸烟能力 。
文章插图
厨房通铺灰色瓷砖 , 耐脏且大气 。 为了解决开放式厨房的油烟问题 , 安装了集成吊顶 , 方便日常清洁打扫 , 吊顶同色的凉霸和吸顶灯 , 美观且实用
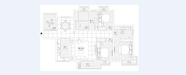
以下就是本套京北华侨城小区75平米二居室房子的户型图 。
文章插图
户型图
以上就是75平米的二居室要怎么装修的相关信息了 , 不管是现代风格还是别的风格 , 只要适合自己的就是好的 , 希望大家在装修的时候 , 小编总结的这些装修技巧能够为您带去帮助 。
推荐阅读
- 168㎡美式风格装修,墨绿色沙发、壁炉电视背景墙,全屋真高级
- 现代轻奢装修案例,别具一格,表达生活理念
- 我家135平三居室,简约装修风格,美翻了
- 25平米的房这样装修好看100倍,现代风格惊艳众人
- 意想不到的神奇效果,86平米的二居室,现代风格只花了7万,太值了
- 欧式风格的145平米的三居室装修成这样,亲朋好友都艳羡
- 120平米的房这样装修好看100倍,美式风格惊艳众人
- 这套118平米的三居室,最后还是选定法式风格,效果竟远超预期
- 88平米房子现代风装修,融入各种经典装修元素,二居室美翻了
- 138平米、现代风,全屋温馨自在,还有一种摩登的美感
