花18万元装修这套143平米的三居室,美式风格,给大家晒晒
美式风格深受年轻一族的追捧 , 小编手中有一个这种风格的装修案例 , 房子来自橙天地文化中心小区 , 143平米 , 三居室 , 的装修方式 , 一共花了18万 , 我们看看实际的装修效果 , 同时也给大家分享一些装修注意事项 。
本案是一套面积为143平米的三居室 , 三代同堂一家六口人居住 。 户型还算比较方正 , 根据业主的需求 , 设计师以舒适实用为主 , 整体风格定位精致轻奢 , 让茶米油盐在家带娃的生活变得充满了仪式感 。 在空间划分、色彩搭配、软装组合方面 , 都希望设计师给予独特的见解 , 整个空间给人的感觉是清爽高雅 , 精致轻奢的感觉 。
当生活越来越趋近简单 , 一个明快舒适的空间就成为了精神世界的港湾 。 在设计的过程中 , 家具的摆放要做到和整个空间风格统一化 , 才能体现出潮流气息 。 客厅的家具多以坐卧类为主 , 其中沙发、茶几等家具就占据了主要位置 , 因此其风格、造型、材料质感都会对整个空间风格的形成起到很大的作用 。
文章插图
客厅色彩上选择了酷酷的蓝 , 整体设计不拘于风格的限制 。
文章插图
【花18万元装修这套143平米的三居室,美式风格,给大家晒晒】卡座的休闲设计 , 两边做了开放式的收纳柜 , 放些书籍 , 坐在这里休息时 , 随手抽出一本阅读 , 也很方便 。
对于卧室来说 , 我们家家户户生活中最不能少了 , 卧室的功能主要是睡眠休息 , 属私人空间 , 不向客人开放 , 所以卧室的私密和温馨是我们装修时需要注意的 。
文章插图
卧室以木色、白色为主色调 , 蓝色作为点缀 , 清新明亮 , 有助于营造安静的睡眠环境 。
文章插图
客卧暂时没有定制衣柜 , 用成品柜满足简单的收纳需求 。
卫生间的装饰设计应采用明朗洁净的色调 , 给人明亮宽敞洁净的感觉 。 照明设计上应选择柔和明亮的灯光 , 既不刺眼 , 又可看清室内各种设施 。 同时注意卫生间设施棱角不应太突出 , 以免伤人;地面洁亮而不打滑 , 以免跌倒 。
文章插图
卧室卫生间安装了双台盆 , 同时洗漱节省了早起洗漱的时间
文章插图
洗手台面上这个装饰品极具复古艺术感 , 体现了业主独特的品味 。
文章插图
大理石台面 , 精致的洗漱用品 , 处处都点缀轻奢的主题 , 同时又有很温暖 。
现代厨房布局的主要特征是按操作顺序设置设施 , 使操作者能按部就班地操作 , 从而减少往复交叉的重复做功 。
文章插图
“L”型的厨房设计 , 洗碗机 , 烤箱嵌入到柜体之中 , 看上去整洁清爽 。
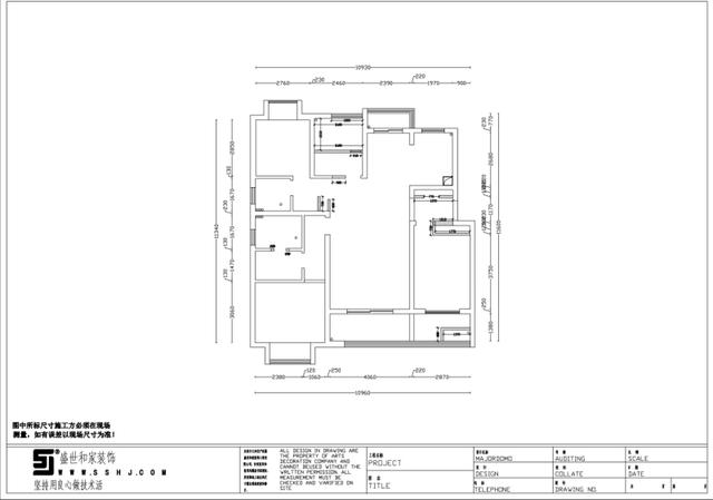
以下就是本套橙天地文化中心小区143平米三居室房子的户型图 。
文章插图
整体户型比较方正 , 三室两厅 , 143平方米 , 简美风格
在现代快节奏的生活步伐下 , 能遇到这样一套美式风的装修案例实属不易 , 这套橙天地文化中心的三居室的案例中 , 通过美式风的装修化户型缺点为优点 , 不浪费每一个空间 , 最大化发挥房子的使用价值 , 充满了装修小窍门的活用 , 想来住在这样的家里 , 一定每天都是幸福满满吧 。
推荐阅读
- 这些装修工艺和家居用品,正被人们逐渐淘汰,因为替代品确实更好
- 小厨房装修没头绪,不如尝试下这个方案,墙壁留一半,少买张餐桌
- 十八线小县城,自己买材料,找游击队装修,太过简单,被坑了
- 168㎡美式风格装修,墨绿色沙发、壁炉电视背景墙,全屋真高级
- 无论面积大小,卫生间装修都不能忽视的问题,再没钱也要做
- 120平方三室二厅的装修案例,看看怎么装出理想家
- 简约新房入住,温馨舒适又大气,入户就被迷住,11万装修费值了
- 装修工期一拖再拖 新房难入住主人着急
- 第一次装修房子,125平却花了20多万,自己买材料,超出预算
- 如果我有一套小房子,就学他家这样装修,客餐厅的设计真心实用
