110㎡小夫妻的甜蜜婚房,灯光设计太撩人( 二 )
文章插图
穿过卧室来到卫浴间 , 暖暖的灯光照耀在灰色的墙面上 , 将虚实之美融于空间 , 营造出慵懒的气氛 。
文章插图
文章插图
文章插图
文章插图
文章插图
常穿的衣服安置在玻璃衣橱里 , 内嵌灯带的设计形式 , 让人挑选衣服时能够非常方便的看到全景 。
文章插图
文章插图
客用卫生间采用圆形的淋浴间 , 角落搭配圆形洗手台 , 通过唯美的规划分割 , 实现功能与美感的结合 。
文章插图
文章插图
文章插图
文章插图
文章插图
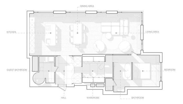
项目布置图
文章插图
文章插图
推荐阅读
- 去客厅化究竟有多爽?这对90后夫妻用事实打脸,新家简约且舒适
- 客餐厅一体还装了飘窗,电视墙装书柜,这对深圳夫妻的家真阔气
- 110平米房子美式风装修,这样的二居室简直是绝美,良心老师傅亲自打造
- 青岛80后小夫妻,买下300m2轻奢时尚别墅,优雅与趣玩兼具
- 90后小夫妻花15万元装修的现代风格,75平米二居室太赞了
- 装修是什么意思?9万装修110平米的房子好不好?
- 90后小夫妻花9万元装修的混搭风格,108平米三居室太赞了
- 这套110平米的三居室,最后还是选定现代风格,效果竟远超预期
- 80后夫妻重装20年老房,玄关两面玻璃太亮眼,完工效果太惊艳
- 13万装修110平米的房子,效果终于出来了
