江西农村两兄妹,花百万在近千平的宅基地上建房,兄妹友爱人人赞( 三 )
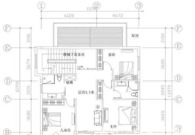
二层平面图:三间卧室设计 , 还有外观景阳台一个 。
三层平面图:主要做成一个休闲娱乐的地方 , 有健身房 , 还有棋牌室和休闲露台 。
推荐阅读
- 天宇科技趣谈:为武汉捐款2亿元,昔日二十几岁赚千万后收购奔驰,他来自农村
- 「种植」野生100元1斤,农村一挖一大堆,农民种植亩产6000斤,1斤卖40元
- 『扦插』农村山间的野果,却是味难得中草药,遇到请珍惜,种植有妙招
- [趣旅游]好消息!江西投放千万元旅游消费券
- [橙子新娱乐]赵丽颖终于成了自己的女王,农村出身到一线女星
- 常见@农村常见的一种野菜,在乡下无人问津,但城里人却跑到农村来挖它
- 生活■拿明天的钱,圆今天的梦,农村年轻人的超前消费无异于自毁未来
- 掌上曲靖▲市督查组到富源督查电子商务进农村综合示范项目
- 佛晓迎晨曦@或许能改变看法,赚钱是难事?看看农村这3个项目
- 「人事风向」运城市委常委、河津市委书记鞠振出任山西省农业农村厅厅长
