10套20万在农村就能建造别墅图纸,收藏好
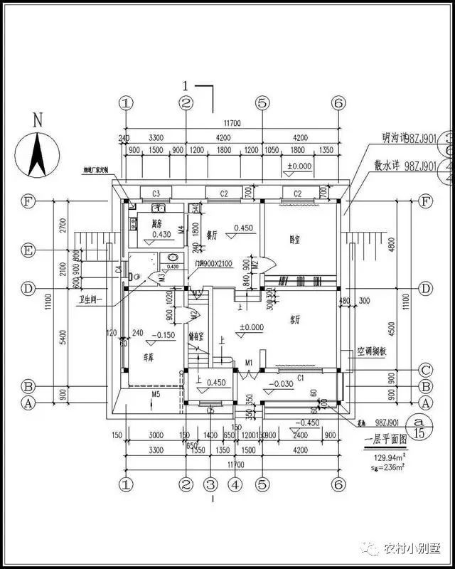
原始标题:10套20万在农村就能建造别墅图纸 , 收藏好 , 回家建房! 1 户型一 农村别墅基本信息 占地尺寸:11.5米*10.5米 占地面积:137.86平方米 建筑面积:256.9平方米 建筑结构:砖混结构 造价估算:30万
推荐阅读
- #牛泉#牛泉镇持续开展残垣断壁整治 改善农村人居环境
- [戏中人葵花宝典]“新型传销”已悄然进入农村,改名换新招,农民朋友可别上当
- 「每日桂林」奇闻丨男子帮朋友倒车,结果把自己压死,法院判车主赔20万!
- 【农业农村部】农业农村部:江苏省沭阳县在查获的外省违规调入生猪中排查出非洲猪瘟疫情
- [木里县]木里生态环境局组织农村环境综合整治行政村任务对接工作
- [农业农村]引导社会资本有序投入农业农村
- 广西卫视TB@村里分红720万,也就买点年货?
- 『发票』一等奖20万元!北京税务局急寻有奖发票7名中奖者
- 『四川农村日报』提前部署做好度汛准备
- 「奖金」北京公布7张中奖发票:一等奖20万元
