「」30平小宅,一分为二,储物全都上墙,客厅大,卧房也宽敞!

文章图片

文章图片

文章图片

文章图片

文章图片

文章图片

文章图片

文章图片

合理规划空间 , 才是小宅之道
30平小宅
合理规划空间 , 才是小宅之道
小户型的小房子
不设计多余隔断墙
开放式的布局最为重要
收纳式的壁柜
将客厅与起居室一分为二
一半起居 , 一半客厅
厨、客一厅
还外带一个入墙式的大书柜
餐桌设计在厨房
与客厅的中央
苗条的身形
一点儿都不会造成小家的堵塞
传统的吊柜式厨房
单排式的布局
只需要一面墙即可
大白墙过分简约
与厨房相连的墙体内部
凹出一个方形置物架
原木的地板
与大壁柜的装饰颜色 , 相似
颜色略带深沉
家具皆是纯白色
少部分用木色点缀
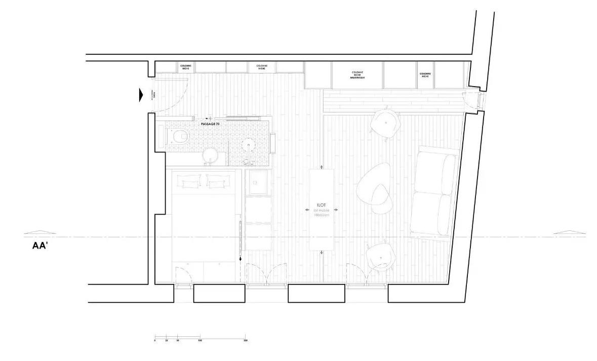
小宅平面布局图
沙发的后背墙
用简单的白色木隔板装饰
三三两两的相框
错开排列 , 颇有几分意思
入墙式的大书柜
解决了家中大部分的收纳问题
每一个暗格
都是一个储物间
大大小小不同排列的木格
每一个都有自己的用途
有的为了解决家政储物
有的解决了家居物品的放置
大书架图纸
虽只有30平的小家
但是每一物的选择
都极为精细
但是这储物格的木面
便能看出一二
入门处的走廊
看似浪费一部分空间
但却这是小家的门脸
清爽、干净是首要要求
置物全都房子壁橱之中
入室的鞋物也是如此
置物全都解决后
最下方的储物留给书架
起居室与厨房
仅有一墙之隔
但却比厨房高出两个楼梯
不要床头柜
物品放在地板上即可
起居室里
就是一个大白床
木色的卫生间
收纳全都交给木柜
干湿分离的设计
洗手池与沐浴区用玻璃分隔
玻璃房里的洗浴区
【「」30平小宅,一分为二,储物全都上墙,客厅大,卧房也宽敞!】
推荐阅读
- 怎样布局家里储物间和带中岛的厨房
- 小三:89平米紧凑小三室,储物功能设计没谁了,最爱的还是次卧
- []厨房吊柜,向下延伸20公分装三角柜,开放式储物格实用又不碰头!
- [瑜伽坊]7天收紧小肚腩,如何抚平小肚腩?5个瑜伽动作
- [瑜伽]想做“炫腹”星人?7式瑜伽抚平小肚腩,练出马甲下
- 『动物园主的夫人』全身一分为二365天穿搭不重样,职场懒人搭配宝典
- 『』它等于“天然泻药”,经常吃一盘,抚平小肚腩,嘴巴不臭,衣服穿小码
- 『安徽卫视美食来了TB』正宗的皖北风味,全在这碗神秘的汤里,来和平小吃部,还你一场酣畅淋漓的早餐
- 没有阳台的户型咋解决晾衣服的问题90平小三居咋能够增加收纳空间
- ▲158㎡简美风格全屋定制,满满的储物!
