『』5套农村经典小户型设计,建起主体只需30万,你会盖哪栋?

文章图片

文章图片

文章图片

文章图片

文章图片

文章图片

文章图片

农村人要过好日子 , 这盖房子也得要提上日程才行 , 家家户户盖新房 , 一片水泥砂浆搅拌的声音 。 以前咱们盖房子通常都没有什么设计之分 , 但是现在社会发展了 , 有很多户型图纸可以选择 , 就算再不济 , 那么多户型图库里总有一款适合你 , 计划盖房就这么简单 , 效果保证比其他村民的房子要好看 。
第一套农村别墅户型:
农村别墅基本信息
?占地尺寸:14.3米x9.4米
? 占地面积:140.17平方
? 建筑面积:274平米
? 建筑结构:砖混结构
?造价估算:25-30万
效果图
一层平面图:
一层设有1老人房 , 2厅 , 1厨 , 外加一个车库 , 车库的大小是3.5×6 。
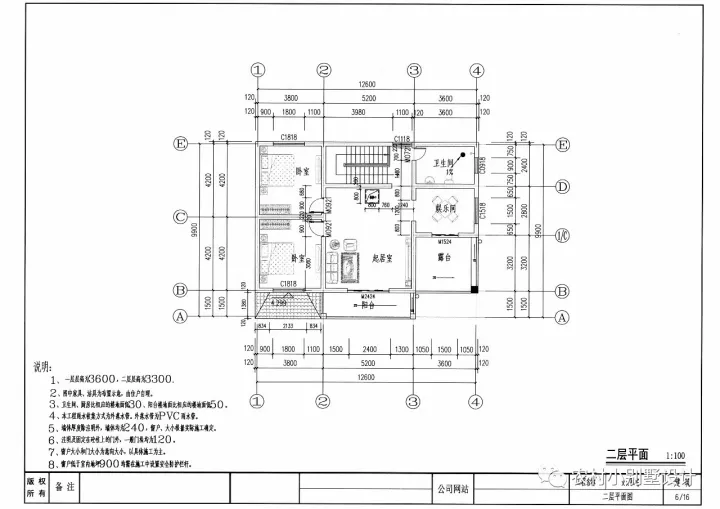
二层平面图:
二层设有3个房间 , 2个卫生间 , 2个阳台 , 1个衣帽间 , 一个书房 , 第二层的空间利用率极高 , 书房和衣帽间都有了 , 房间数量也比较多 , 虽然别墅只有两层 , 但是空间利用的好 , 生活和休闲两不误啊!
第二套农村别墅户型:
别墅为两层欧式建筑 , 户型可谓是整体错落有致 , 醒目的竖窗设计 , 典雅高贵!
一层别墅设计图:客厅 , 卫生间 , 拥有两间卧室 , 餐厅 , 厨房 , 储物间 , 楼梯 。 功能分区简洁 , 布局合理舒适 。
二层别墅设计图:起居室 , 卫生间 , 三间卧室 , 阳台 , 楼梯 。 空间安排得大方简明 , 十分宜居 。
第三套农村别墅户型:
别墅基本信息
? 占地尺寸:11.3x11米
? 占地面积:116.5㎡
? 建筑面积:205.39㎡
? 建筑结构:砖混结构
?造价估算:18万
效果图:
平面图展示:
精致布局完美错落 , 除了必要的功能分区 , 独设的卧室能满足家中老人的生活需求 。
一层平面图:
二层平面图:
二层主卧带阳台 , 客房与起居室相连 , 保证住户完美体验 。
第四套农村别墅户型:
别墅为两层欧式建筑 , 户型方正 , 简约美观 。 田园风格的别墅倡导回归自然的理念 , 亲切 , 朴实 。 强大的居住功能与舒适性使得这栋别墅的别具一格 。
【『』5套农村经典小户型设计,建起主体只需30万,你会盖哪栋?】
推荐阅读
- 河南新农村频道5月10日河南省无新增新冠肺炎确诊病例、疑似病例、无症状感染者
- 小屁孩儿网友:怨不得旁人,为啥现在很多公司不要农村孩子?老板道出缘由
- 明英传奇但别“贪”,“穷”人会遇到这五种情况
- 桑叶农村里常见的桑树叶,除了喂蚕还有这用途,可惜很多人不知道
- 美食家庭季这8款经典方便面,火鸡面上榜,哪一种是你喜欢吃的呢
- 农村大瓦房,有没有好办法(除独立生炉子和电暖气)让一个屋子暖和
- 西山巷马来西亚巴生经典美食之肉骨茶
- 『』适合农村建的两层小别墅,简单精致,养老首选!
- 老蒋书房择善而交!(经典),朋友
- 扬州姑娘一碗面粉一杯水,健康、经典老味道红糖枣发糕,家庭自制零失败
