「」3款二层农村小别墅,款款带车库,统统只要28万

文章图片

文章图片

文章图片

文章图片

文章图片

文章图片
农村建房最追求是经济实用 , 今天小编很认真的给大家整理了4款二层农村别墅图纸 , 户型布局完美 , 而且美观大气 , 最重要的是统统只要28万 , 当然只是主体 , 简装完工50万以内 , 看一看 , 有没有你的菜 。
1户型一
编号J2398
占地尺寸:10.88m×12.38m
占地面积:134.69平方米
建筑面积:212.55平方米
结构类型:框架结构
主体造价:22-28万
这款现代风格的农村别墅 , 第一眼看上去就非常的让人惊艳 , 敞开式的车库 , 带着一点东南亚热带风格的气息 , 外观的配色非常的时尚 , 暖色系的搭配 , 把家的温馨感体现的淋漓尽致 , 非常符合现代农村的建房政策 。
2户型二
编号J2400
占地尺寸:12.8m×10.8m
占地面积:126.7平方米
建筑面积:217.6平方米
结构类型:框架结构
主体造价:22-28万
带车库 , 户型简单实用 。 户型小 , 造价低 , 在农村建造它非常实用不浪费 。 二层农村别墅非常适合农村 , 小户型也满足一般家庭居住 , 只需花个二三十万就能建一套 。
3户型三
编号J2603
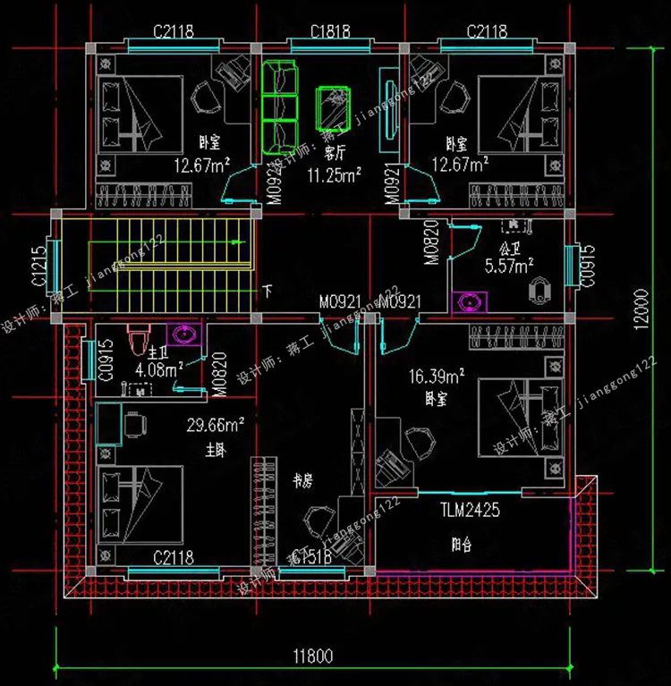
占地尺寸:11.8m×12m
占地面积:141.6平方米
建筑面积:268.3平方米
结构类型:砖混结构
主体造价:22-28万
【「」3款二层农村小别墅,款款带车库,统统只要28万】
非常简约的一款二层农村别墅 , 端庄大方 , 暖色外墙搭配黄色坡屋顶 , 油然而生一种体面之感 。 立面造型更加连贯 , 设计感十足 , 别墅四面多窗户设计 , 屋屋逐日光 , 在家足不出户也能享受阳光生活 。
4户型四
编号J2610
占地尺寸:11m×12.18m
占地面积:133.1平方米
建筑面积:230.3平方米
结构类型:砖混结构
主体造价:20-25万
精致典雅的二层楼房图纸 , 藏不住的经典 , 户型简单合理 , 外墙可以用文化石搭配真石漆 , 很有质感 , 这款我们见过很多案例 , 都是不带车库的 , 这款在户型上进行了升级 , 更符合现在的农村建房需求 。
推荐阅读
- 发型■C罗肌肉很抢眼,他这3款发型也很帅气,男人味十足
- 208斤的胖子减脂记录晚上下班回家只要10分钟就可以轻松搞定的3款美味减肥餐
- 『』以后有钱了,我也要盖个同款!二层小楼带60平大院子,还建个泳池
- 「」兄弟俩回村建二层双拼别墅,忍不住晒出建成实拍照,这房子绝了!
- 逸仙药师孩子返校在即,3款药膳为其助力
- @4栋中式风格的二层别墅,白墙灰(蓝)瓦,施工简单生活自在
- 「面霜」面霜真不是越贵越好!3款口碑不错的经典国货,用过的都说好
- 农村小王趣事维C是苹果的9倍,能当主食能做菜,孩子的最爱,多给孩子吃此物
- 搜狐新闻3款宝宝超喜欢喝的营养粥
- 农村小王趣事汤浓味美,解馋下饭,吃起来真过瘾,经常给孩子多吃的开胃菜
