『』她家坚持极简北欧风,全房大白墙无主灯,宽敞又大气,很耐看!

文章图片

文章图片

文章图片

文章图片

文章图片
导读:她家坚持极简北欧风 , 全房大白墙无主灯 , 宽敞又大气 , 很耐看!
屋主小夫妻二人工作多年 , 终于购买了人生中第一套112平米三居室新房 , 全房以简约北欧风为基础 , 追求极简的生活态度 , 营造出一个宽敞又大气的生活环境 。 全房铺设木地板搭配大白墙粉刷 , 客厅无主灯采光设计 , 让人感觉放松、自然又舒适 , 羡慕极了 , 一进门就被迷住 。 忍不住晒晒 , 希望大家喜欢 , 准备装修和正在装修的朋友 , 记得收藏备用 , 可以作为一个参考案例哦 。
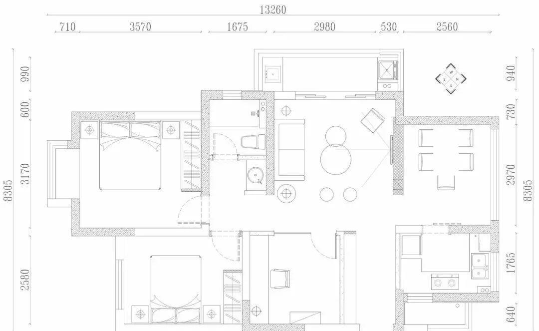
平面设计图
面积:112平米
户型:三室两厅一厨一卫
风格:简约北欧风格
入户玄关
进入室内映入眼帘的便是一条很长的玄关走廊 , 地面整体以原木质感的木地板铺设 , 搭配大白墙粉刷 , 顶面设计大平顶 , 搭配筒灯进行采光设计 。 左手边靠墙定制一整排白色+原木质感的玄关收纳柜 , 鞋柜底部留空设计一层隔板+换鞋凳的造型设计 , 提升舒适实用性 , 右手边墙面安装一幅黑白色为基调的简约风装饰画点缀 , 提升美观性 。
客厅
客厅依旧延续实木地板+大白墙粉刷 , 顶面安装中央空调 , 设计了方形的大吊顶装饰 , 提升空间层次感 , 陈设一张灰色调布艺沙发+粉色沙发椅 , 搭配玻璃面的方形茶几 , 地面铺设一块纯色的地毯 , 简洁自然又温馨 。 电视墙后面的区域是餐厅 , 电视墙拆掉上半墙 , 提升空间的视野 , 让两个空间能够连通起来 , 看着更加宽敞 。
阳台
阳台上超大的落地窗 , 视野非常的开阔 。 作为洗衣、晾衣区 , 一层定制了洗衣池 , 另一侧摆放洗衣机 , 顶面安装升降式晾衣杆 , 便于平时的使用 。
书房
书房的空间拆掉隔墙 , 改造为窄边通顶的黑色玻璃隔断 , 提升空间的视野 , 又不失独立性 。 陈设书桌椅、置物架 , 显得格外轻松 , 闲适 , 在边里办公、学习心情也会很愉悦 。
餐厅
餐厅就餐区靠墙陈设一张白色面长方形餐桌 , 搭配简洁时尚的餐椅 , 正上方设计两盏小吊灯 , 搭配墙面的创意装饰和月牙墙贴 , 整个餐厅的面积虽然不大 , 但却独具趣味 , 呈现出一丝艺术的气息 。
厨房
厨房设计黑色窄边通顶玻璃门 , 整体以灰色调的瓷砖进行铺设 , 定制U型橱柜+吊柜 , 门口的位置预留出摆放冰箱的空间 , 布局非常的合理 , 整体灰色+白色的色彩搭配 , 呈现出简洁质朴又干净整洁的气息 。
主卧
主卧空间依旧延续木地板+大白墙粉刷 , 靠墙定制一面白色实木通顶衣帽柜 , 无把手的设计 , 大气又实用 。 陈设一张深灰色皮质双人床+胡桃木床头柜 , 床头设计吊灯装点 , 搭配灰色调的床品被褥 , 简洁舒适又温馨 。
次卧
次卧依旧延续整体的风格 , 大面积的纯色调搭配 , 再配以装饰画和玻璃吊灯 , 来营造出一个简洁舒适的睡眠空间 。
推荐阅读
- 怎样看待qq附近女生把签名改成“猥琐大叔别来骚扰我”,但每天坚持刷新附近位置的行为
- :她家130㎡,坚持全屋做“减法”,客厅做个小抬高,漂亮实用,聪明
- 怎样做到每天十小时工作周六加班外还能坚持锻炼身体及学习
- 【长寿】寿命长不是多走路和多睡觉,而是坚持以下2件小事,可健康又长寿
- 营养科普小天|坚持一周后,身体会有3处惊人的变化,睡觉前把“生姜”涂在脚底
- #米饭#一个人的极简晚餐,低卡低脂又饱腹,体重悄悄就轻了!
- 「米饭」一个人的极简晚餐,低卡低脂又饱腹,体重悄悄就轻了!
- #黄芪#黄芪和它“天作之合”,坚持泡水喝,养肝护肾,气色红润显年轻
- 「」等我家收房了,要学她家装修,很漂亮,大理石电视墙非常满意!
- 健康直通车|坚持喝,清除口臭,大肚腩也消失了,山楂和它堪称“天仙配”
