「」67㎡三角形格局二居室,设计独特又满足了日常需求,什么神仙设计

文章图片

文章图片

文章图片

文章图片

文章图片
今天齐家芳芳要分享的是一套67㎡三角形格局二居室 , 设计独特又满足了日常需求 。 简约的空间 , 简洁却不显空洞 , 温柔又优雅的搭配 , 就算天天在家呆也不会有油腻感 。 下面就和齐家芳芳一起来看看吧 , 希望能给到你灵感!
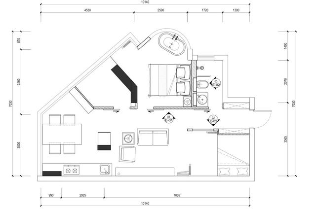
平面布置图
在入户玄关走廊的两侧都做了嵌入式的鞋柜 , 这样既不会影响走廊的通行效果 , 又能让小户型拥有更多的储物空间 , 其中一侧的鞋柜可以做成带有换鞋凳的款式 。
走过玄关就到了客厅和儿童房空间 , 儿童房现在是一个开放式的空间 , 内部摆放婴儿床和小桌子等 , 方便孩子玩耍 。
客厅作为一个中转空间 , 连通了家里的其他功能区 , 为了避免通行不方便 , 把茶几和电视柜都给省略了 , 有一张沙发方便坐着休憩就好 。
餐厅和厨房位于靠窗的位置 , 这样光线更加明亮 , 吃饭的时候也能有个好心情 。 弧形的窗户并不让餐厨看起来太怪异 。
在餐厨的边上还有一个迷你的书房工作区书桌、书架结合在一起的设计 , 占用的面积不多 , 又非常实用 。
卧室也是一个不规则的空间 , 还在卧室靠窗的地方摆放了一个大浴缸 , 整体以白色为主的设计 , 让卧室看起来宽敞又明亮 。
浴缸这一部分的地面铺上了地砖 , 这样可以避免水溅到地板上 , 窗帘是略带粉色的款式 , 让卧室多出了一些浪漫感 。
卧室里面并没有做收纳 , 那是因为在卧室的侧方还有一个独立的衣帽间空间 。
卫生间内做了干湿分离的设计 , 避免水汽的侵蚀 。 还把镜柜延伸到了马桶的上方 , 让卫生间拥有更多的储物面积 。
【「」67㎡三角形格局二居室,设计独特又满足了日常需求,什么神仙设计】齐家芳芳提供更多装修资讯 , 喜欢我的朋友记得收藏和关注哦!(素材来源网络 , 无法核实真实出处 , 如有侵权 , 请直接联系齐家芳芳删除 。 谢谢!)
推荐阅读
- 三居室|老屋孕育生活趣味 文旅系轻柔住宅
- 【佛系】126m2现代三居室,都市白领的简约风,打造简单不凡的佛系雅居
- 小芬育儿日记|父母先从自己做起,孩子才会更出色,教育拼的是家庭的格局
- 【】89㎡三居室,厨房设计了内开窗,没想到效果这么好,真装对了
- 「」室内软装设计配色技巧-怎样打造静泌温馨的居室
- []沉稳的两居室美式,面积不大113平米,但是有家的感觉!
- 「背景墙」133平的美式风三居室,满眼都是典雅感,好羡慕呀
- 悟师姐娱乐汇|父母的格局,决定孩子一生,别人家的孩子!14岁黄多多拿国际大奖
- ##半截墙装玻璃窗,一居室多出一间房,厨房墙砸掉后,空间超宽敞!
- 『设计师』140㎡的四居室,不拘稳重更显品味,感受独有的美式柔情
