『』雍锦园152平米跃层新中式风格装修设计

文章图片

文章图片

文章图片
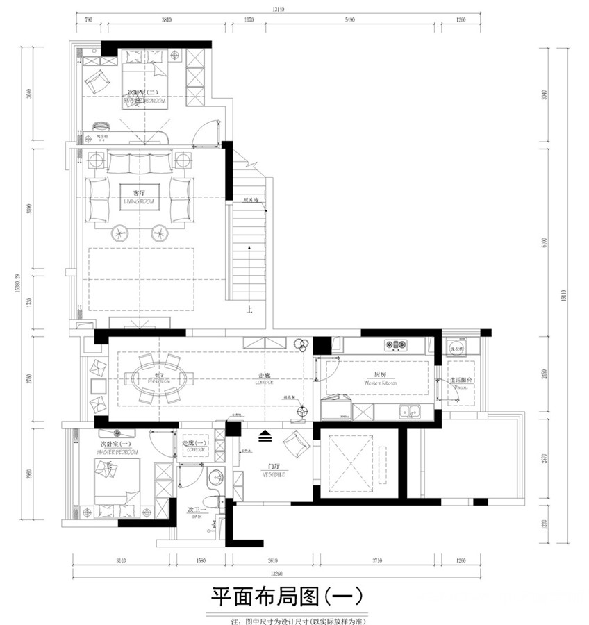
楼盘名称:雍锦园
房屋类型:复式/跃层
房屋面积:152平米
装修风格:新中式风格
设计说明:在设计上用新中式方式体现了温和、淡雅、舒适、闲适的风格 。 客厅的整体色调为清新淡雅 , 沙发背景墙采用了上水壁布 , 仿佛能看见诗人在山水间对赋吟诗的意境 。 电视背景墙则用大文理的石材呼应沙发背景 , 在家具上选用了经典的中式沙发 , 用盆栽做点缀 , 让整个空间更加的舒适、完美的展现了空间的闲适之感 。 在餐厅墙面一侧延续客厅的山水意境 , 使整个空间连为一体 。 仿佛置身于深山仙境 。
【『』雍锦园152平米跃层新中式风格装修设计】
推荐阅读
- 复式|复式和跃层有什么区别
- 我的跃层公寓装修需要每层都装新风机吗
- 实用面积80平的小户型跃层咋装修
- 阳光小兔儿|效果太高级了,180平现代简欧装修样板间!跃层装修案例非常上档次
- 120m2跃层怎样装修,楼梯怎样设计。
- @146㎡美式跃层装修,打造浪漫设计感的家
- 跃层隔层用钢木结构好还是钢混结构好
- 跃层 跃层是什么
- 复式 复式装修和跃层装修有什么区别 复式装修有什么难度
- 装饰设计 跃层装修有哪些技巧?跃层装修要注意什么
