前湾西海岸前湾港路南、致远中学西住宅项目规划出炉 建设17栋3~4层住宅楼
半岛采访人员 于红靓
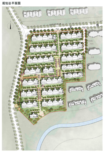
近日,西海岸前湾港路南、致远中学西住宅项目规划建筑方案进行批前公告,项目由青岛顺新园置业有限公司建设 。
项目占地面积35578㎡,建设17栋建筑(15栋4层住宅楼,2栋3层住宅楼),总建筑面积为72739.29㎡(地上总建筑面积35933.78㎡,地下总建筑36805.51㎡),容积率1.01,绿地率35.11%,建筑密度26%,停车位数343个(地上34个,地下309个),规划住宅总户数227户 。
文章图片
文章图片
文章图片
文章图片
文章图片
【前湾西海岸前湾港路南、致远中学西住宅项目规划出炉 建设17栋3~4层住宅楼】
文章图片
推荐阅读
- 六保|西海岸新区区长上线!胶州湾第二条海底隧道最新进展来了
- 宜居|青岛西海岸新区打造城乡融合发展共同体 建设美丽宜居新农村
- 楼座|西海岸墨香路西灵海路南住宅项目规划变更 楼座平移、平面布局调整
- 1.001|西海岸藏马山A31地块规划公示 建设10栋三层住宅
- 片区|西海岸多个地块控规调整公示 涉及海洋高新区北片区、朝阳山片区
- 西客站|西海岸多个地块控规调整公示 涉及唐岛湾中心东片、西客站商务区
- |真黑!上了两周西海岸航海职业学校,退学就扣9000多学费?
- |大村镇市美北村村民草鸡了!厂方:规划合理
- |海大西海岸校区一期主体年底完工 2022年9月启用在校生2万人
- 黑卓|万科&黑卓5.9亿元摘得西海岸23.5万㎡宅地 补仓海岸万科城
