##多窗户设计的小两层欧式别墅,透光性良好,你喜欢吗?
【##多窗户设计的小两层欧式别墅,透光性良好,你喜欢吗?】
文章图片

文章图片

“人生当有别 , 一墅见天下 。 ”
大家好 , 欢迎来到宇鸿建筑 。
瑞士建筑家凯乐说:“真正的别墅应该是融在自然环境里 , 需要你在自然环境里寻找发现 , 而不是个性的张扬 。 ”
今天小编给大家带来的是一套小两层的欧式别墅 。
整体的外观设计线条流畅 , 层次分明 , 建筑的立面采用的是米黄色真石漆 , 物美价廉 。
二层设计了一个小露台 , 露台周围的护栏设计也很有特色 。 一般的别墅设计都会留出一个露台 , 用来晒太阳 , 喝喝茶 。
别墅的坡顶采用了蓝灰色的琉璃瓦 , 色调搭配相得益彰 。 斜坡式的坡顶 , 在雨天也不会有积水问题 , 这样的别墅 , 住得舒适又安心 。
这套别墅的占地面积为160平米 , 开间12.04米 , 进深13.04米 , 整体的建造结构形式是砖混 , 墙体能起到保暖的作用 。 主体的造价在20-25万之间 。
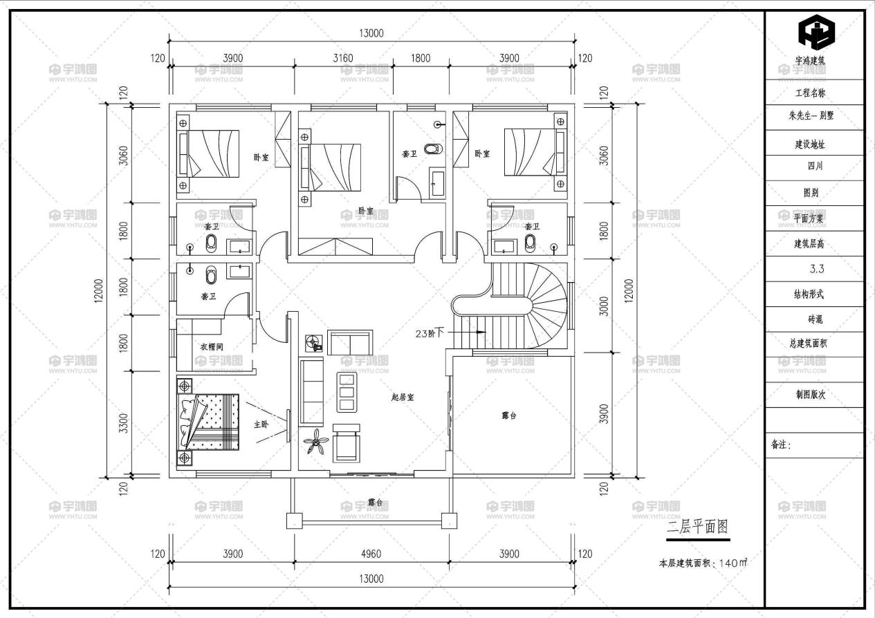
顺便附上平面设计图纸:
一层从门厅进入就是玄关 , 客厅设计在右侧 , 三个卧室都带独立衣帽间 , 主卧增加了独立套卫 。 餐厅设计在两个侧卧之间 , 还开了一条后门 。
二层设计了四个卧室 , 分别带独立套卫 , 主卧还增加了衣帽间 。 起居室适合晚上坐在一起聊天 , 看电视 。 外面是一个大面积的露台 , 适合养养绿植 , 晒晒太阳 。
这样一套小两层别墅 , 建在农村 , 会让村里人都羡慕的 。
点赞关注 , 我可以让你少花钱 , 建个更好的房子 。
推荐阅读
- 工业设计领域中的结构设计行业咋样
- 美丽探索|去世时仅66岁,“建筑女魔头”扎哈?哈迪德:北京大兴机场设计者
- 英特尔|英特尔发布AI计算盒参考设计:软硬协同,满足多元算力泛场景需求
- 服装设计师小卷|乔欣透视黑裙抢镜,女明星走红毯谁最美?三十而已造型集体翻车
- MEFine觅范|上海近期值得看的时装展,细数Dior历任设计师
- 设计师|151平 现代简约私宅,低调奢华的设计!
- |家庭装修中,最不值当投入的是什么?
- 设计师|忍不住点赞!25个人性化的城市设计,设计者简直是天才!
- 平面设计走“文创”方向,前途怎样
- 各位大神帮我看看我以后适合啥专业和工作
