设计师|这是我见过最有质感的小户型设计,80㎡,黑白简约高级风!

文章图片

文章图片

文章图片

文章图片

文章图片

文章图片

文章图片
一千个人眼中 , 就有一千个哈姆雷特 。 一千个人眼中 , 也有一千种“好家居” 。 好家居像一个神一样的存在 , 不在样板间、也没有标准 , 只来源于我们的内心 。
今天小编给大家分享一个黑白极简风格的装修案例 。 全屋整体呈现出年轻科技新贵的生活风貌 , 拥有精致小巧的餐厨区 , 简单纯粹的空间布局 。 设计师再在空间中加入男屋主喜欢的黑白简约风格 , 搭配石材点缀 , 打造具有现代冷冽男子气概的时尚小家 。 话不多说 , 快跟随小编的步伐 , 一起来看看吧 。
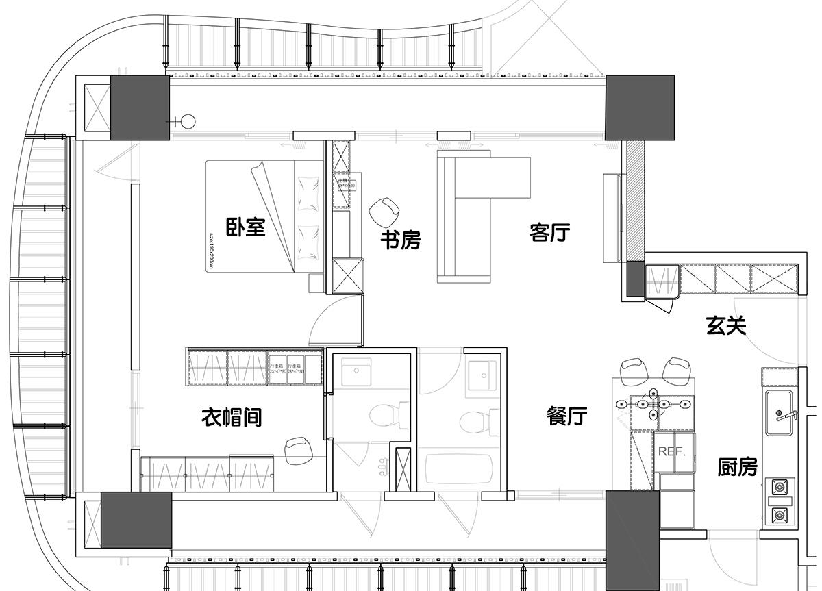
设计图纸
本案例户型一房一厅两卫 , 居住人数2人 。 针对小户型的特点 , 设计师着重设计收纳柜体的空间 , 利用有深度的柜深设计提高收纳量 。 例如玄关柜的深度达52公分 , 满足家庭中的各种收纳需求 。
<屋主需求>
1.整体风格以黑白色调为主 , 加入一些金属和大理石的元素 。
2.不大的用餐空间要摆放下特别挑选的餐吊灯 。
3.屋主要求拥有一览无余的更衣室与收纳球鞋的空间 。
玄关设计
为了提升一进门空间的开阔感 , 玄关顶面做了栅栏设计 , 降低了空间的局促感 , 同时也可以有效地划分功能空间 。 白色的定制鞋柜搭配黑色开放格设计 , 简洁干练 。 左侧为衣帽柜 , 右侧鞋柜底部悬空加入灯带照明 , 营造属于家的温暖氛围 。
左侧高柜下还隐藏了一个方便长辈、客人穿拖鞋的可收纳穿鞋凳 , 将其隐藏在衣帽柜之下 。
客厅设计
步入客厅 , 电视墙一侧的天花板从玄关梁柱一侧向上延伸 , 运用斜面收尾逐渐释放客厅领域 , 同时屏蔽掉空间冷气风口 , 再辅以间接照明创造空间层次感 。
电视墙采用了屋主喜爱的大理石纹理 , 大面积的通铺延伸视觉尺度 , 右侧嵌入黑色镀钛板增添一丝奢华干练的感觉 。 灰色电视柜采用深灰瓷釉板加以框边 , 营造带有未来感的利落气息 。
全屋以黑、白、灰三色为主 , 打造带有简洁科技感的现代风格 。 通铺的浅色木地板 , 起到了调整整体色调的作用 , 为家注入一丝温润的舒心感 。
书房设计
客厅沙发的后方是开放式的书房区域 , 全白色的整体书柜打造轻盈的视觉感 , 非常适合小户型设计 。
书柜布局运用鲜明的黑色点缀视觉重点 , 时尚大气 。 同时也提供了屋主两人展示公仔和旅游纪念品的位置 。
餐厨设计
一进门的右侧设计了一个小型的玄关柜来化解开门见灶的风水疑虑 。 白色极简风格的一字型厨房 , 创造清爽和谐的烹饪场所 。
推荐阅读
- 九酷娱乐|见过吗?舒筋活血,解毒消肿。主扭伤、跌打损伤、鸡眼,山椒草
- 沫沫的静好岁月|我就不再是我”;为了孩子,当妈就要修行,三十而已:“出了月子
- 好孕官方|从孩子以下表现就能发现,衣服穿再贵掩盖不了,是否见过“世面”
- 为啥我会是我,这个世界真实存在吗
- 室友的亲戚或者父母请大家吃饭,但是我说自己要复习所以不去,这样是不是很没礼貌?
- 盘点目前中国大地上的“景观败笔”都有哪些
- 服装设计师小卷|乔欣透视黑裙抢镜,女明星走红毯谁最美?三十而已造型集体翻车
- MEFine觅范|上海近期值得看的时装展,细数Dior历任设计师
- 设计师|151平 现代简约私宅,低调奢华的设计!
- |家庭装修中,最不值当投入的是什么?
