南京|450㎡别墅设计,极致简约、更高级!( 二 )
文章图片

文章图片

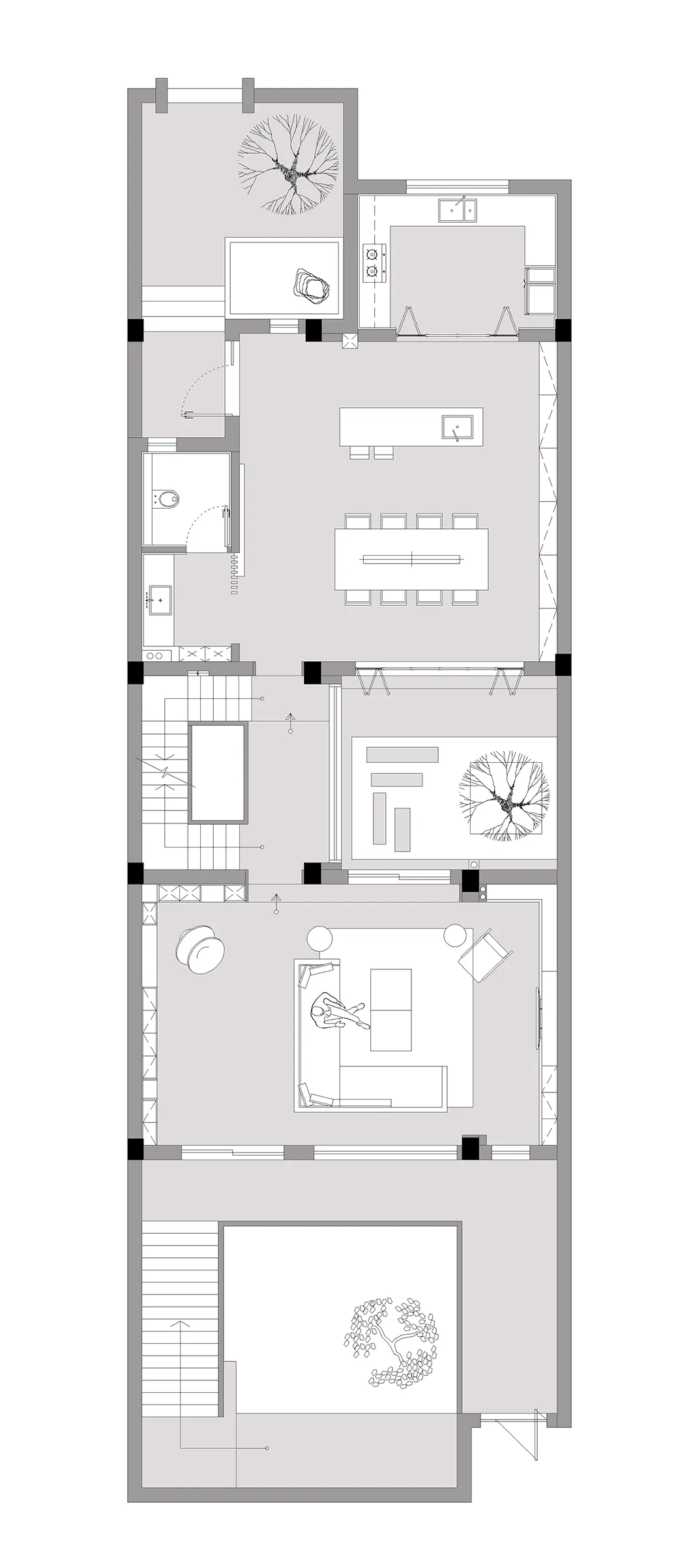
这是位于市中心的高密集住宅区 , 闹中取静 , 原本开发商的房子结构是中式合院的外观 , 由于建造年份久远 , 外墙大部分已经脱落 , 有严重的渗水问题 , 深色的墙面和一个个的小窗让整个建筑逼仄又封闭 。
从三楼的阳台下望, 是三块超大的定玻 , 充分的把采光引入楼梯间 , 还有一楼天井的枯山水 , 雨后又是另一种景象 。
在物业所允许的范围内 , 我们把所有空间打开 , 用了大块的落地玻璃 , 内建筑墙面刷白 , 客厅、餐厅、厨房四面连通 , 空间开放 , 让光线与气韵流通 。
一层餐厨
空间中最大的特色是连接客餐厅的采光天井 , 开阔的空间连通庭院 , 让阳光很好的投射到了每个房间 , 清风徐来 , 流云投影 。
一层空间动线基本是贯通的 , 从地下室上到过道然后进入客厅 , 客厅又进入采光天井 , 再由天井步道进入餐厅和厨房 , 开放性的厨房和岛台 , 形成回字型的行走动线 , 增加空间感的同时给予家人更多的互动和交流 。
餐厅通过细边黑框玻璃折叠门 , 保留光线穿透性的高透玻璃 , 在开放与封闭式之间自由切换 。
一层客厅
客厅是这个家庭的生活重心 , 开放、流动的手法糅合充足的采光 。
空间用色干净、简约 , 层次 , 客厅和客餐厅之间由天井作为分隔 , 划分空间又保持着开阔性和通透感 。
负一层休闲区
地下室的阶梯把功能和美观结合起来 , 又是过道 , 又是卡座 , 灰调的水磨石从地面延展 , 明亮的光线为空间增色不少 , 衔接起木色的家具和墙面 , 即是一个休闲观影的空间 , 又是一个活力又充满朝气的亲子空间 , 孩子可以在这里戏闹和练舞【南京|450㎡别墅设计,极致简约、更高级!】
上台阶之后是户外花园 , 坐等一年之后的橄榄树长开 。
楼梯
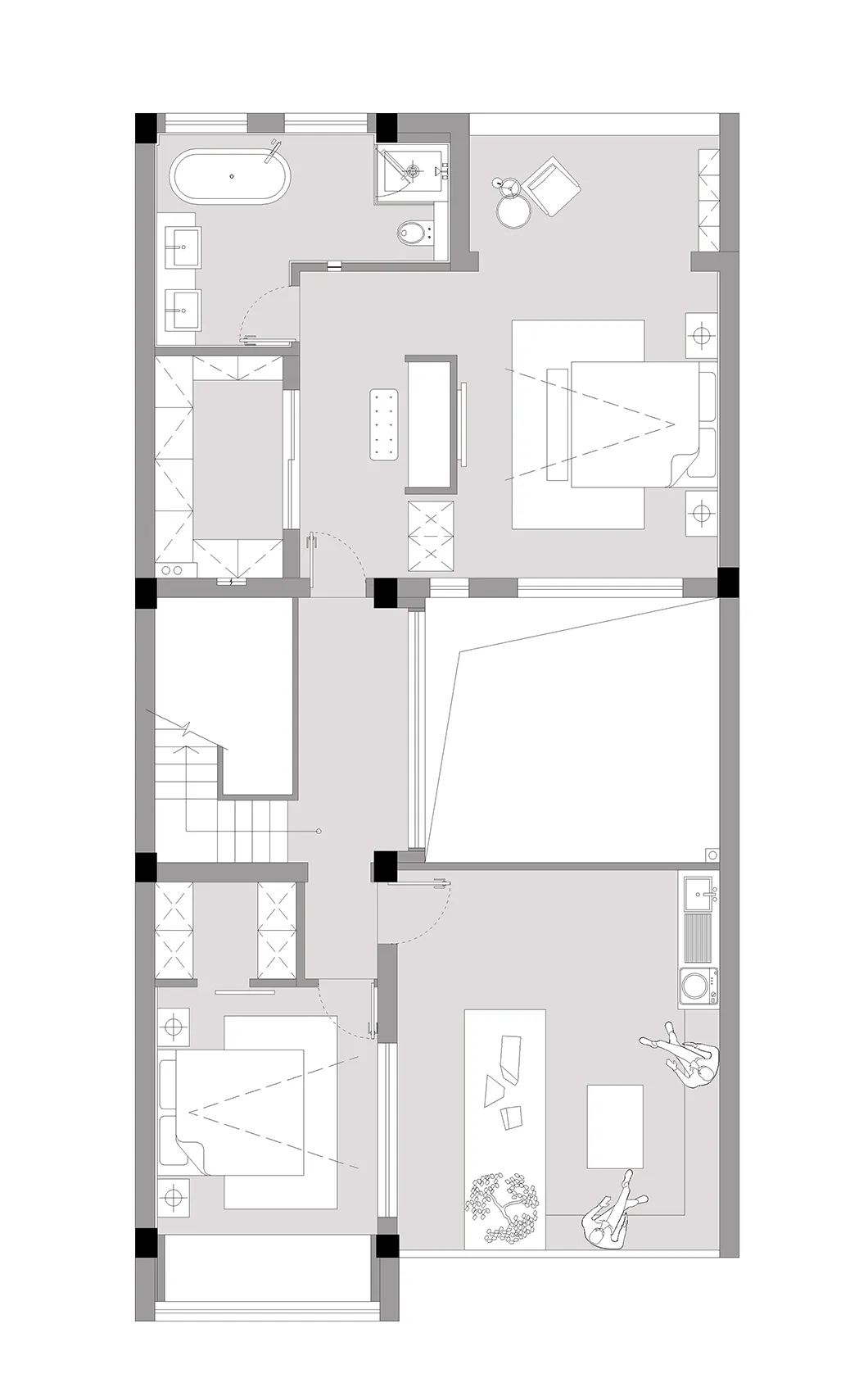
二层女儿房
二层的女儿房是最惬意的一个房间 , 明亮的光线 , 拉开窗纱 , 窗外的绿意随即透入屋内 , 在天气晴好的时候 , 推开所有的窗户 , 总有种清风徐来的惬意 。
二层书房
三层主卧
主卧的空间是干净温暖的 , “暖”并不是在色彩上的体现 , 而是希望通过材质的运用和生活方式的结合 , 从触觉的舒适来提升温馨感 。
复古的手工牛皮落地床 , 背景色块画是提取牛皮纤维中最浅的颜色 , 设计师亲自调色手绘 。
主卫以黑灰为主色调 , 双台盆、落地浴缸、、中性偏硬朗的空间极具功能性 , 在设计感之外获得了很棒的舒适体验 。
阳光投射在纯净简洁的空间中 , 整体设计显得高级不失平易近人的生活感 , 使得空间本质真正回归且映照居住者的内心意境在4层建筑的空间中 , 以一种温暖和简约的朴质气质呈现 。
平面图
△负一层平面图
△一层平面图
△二层平面图
△三层平面图
推荐阅读
- 天津交通广播|450万人围观!89岁奶奶讲述“疯狂逃婚往事”:我不要做富太太
- |带大露台的双层别墅,布局实用接地气,2020建房首选他
- 张登海细说教育|开100万的车,母亲出镜气质优雅,张继科的大别墅有游泳池还养鸡
- 花开半夏唐语砖雕|独一无二的复古风温馨四合院,太适合居住了,不羡慕豪宅别墅
- |带堂屋的三层农村别墅,占地12X12米,欧式设计太赞了
- 怎么样在南京邮电大学找一个人
- 翔哥文史|娶“晴格格”为妻,却移民到澳洲,富豪王志才:紫禁城边有别墅
- |经典双层简欧风别墅,咱农村人建得起的好房子
- |三层现代简约别墅,外墙颜色双拼,你觉得建在农村怎么样?
- |11×11米,造价25万二层农村别墅,实用性价比高,拿回家立马盖
