家居|这样的现代美式风家居,怎么能不爱呢?
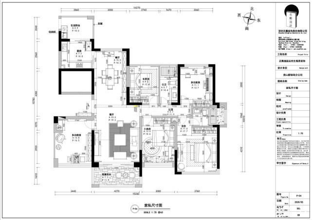
关于美好生活,一千个人心中有一千种不同的想象,美好生活没有模板,生活的理想就是理想的生活,房子结构是南北朝向,非常方正,保留原有空间在细节处做了微调,让储物空间更实用。
【 家居|这样的现代美式风家居,怎么能不爱呢?】
文章图片
客餐厅:客厅以素雅的色彩为基调,配合简约美式的家具及精美的装饰摆件,完美地诠释了现代美式的奢雅魅力。餐厅原先面积偏狭长,将厨房局部墙体拆除,拉大餐厅空间的视觉效果。餐桌搭配曲线柔美的餐椅,稳重中不失大气,精致的水晶吊灯和墙面装饰镜组合让整体空间层次感更加丰富。 
文章图片
主卧:主卧卡其色调贯穿内外,搭配灰紫色床头背景,陈设摆件的别致协调,每一个细节的铺排,彰显出微妙的富裕感之余,亦讲究一丝丝惬意的捕捉,在这里,追逐流行的趋势反而可以避免,古铜质感的装饰挂件恰恰体现了女主人的生活追求。
文章图片
茶室:茶室的设计颇有中式风格,既突出了中国文化,还有现代化的风格,休闲自在。
文章图片
书房:纯白色实木家具与硬装搭配给人宁静之感,实现功能之余能多的是不影响美观的同时增加收纳容量。
文章图片
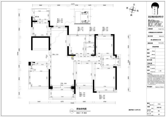
原始结构图
文章图片
平面设计图
推荐阅读
- 吴良镛|对学识和事业要“贪得无厌”,这三位资深学者拥有这样的精神
- 青岛上海路小学|秋季开学临近 岛城这所百年校园这样统筹教育复学与防疫工作
- 多边组织|要么捣乱,要么退群:美国这样对待“不听话”的国际多边组织
- 美食|晚餐不想开火炒菜,试试这样吃,食材丰富,营养还足,几分钟上桌
- 专家:信用体系建设是提高治理现代化的重要抓手
- 赵薇 |赵薇抢了她的角色,她却抢了赵薇男友,今39未婚生子成这样!
- 新疆|【幸福花开新边疆】在勒门巴民族乡,真实的边境生活是这样子的
- 症状|便秘的症状一般有哪几种
- 口罩|快要开学了!还需要戴口罩吗?疾控专家这样答复
- 特朗普|“好朋友”安倍因身体原因突然辞职,特朗普这样回应
