占地尺寸|农村没有堂屋的房子不是好房子,20套户型分享,总有一套看上眼( 二 )

文章图片
第十一套:
占地尺寸:17.7m*17.7m
占地面积(不含庭院):159.3㎡
建筑面积(不含庭院):308㎡
文章图片
文章图片
文章图片
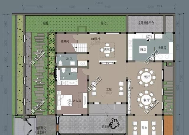
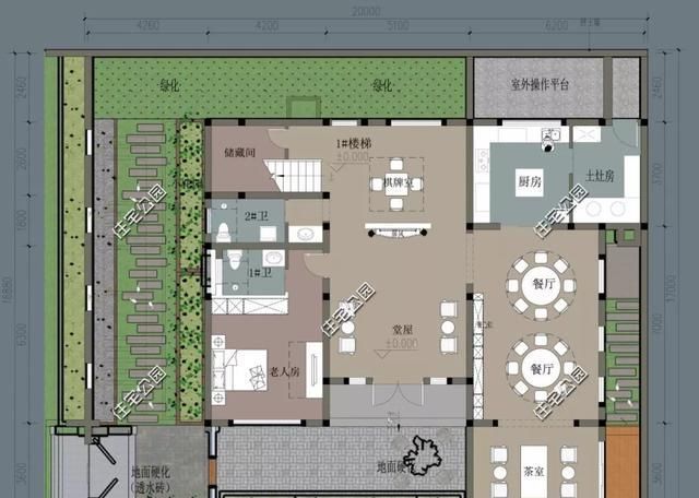
第十二套:
占地尺寸:21.1m*20.5m
占地面积:434.2㎡
建筑面积(不含内院):329.3㎡
文章图片
平面布局图:
文章图片
文章图片
第十三套:
占地尺寸:20m*16.8m
占地面积(不含庭院):175.7㎡
建筑面积(不含庭院):360.8㎡
文章图片
文章图片
文章图片
第十四套:
占地尺寸:21.3m*12m
占地面积:281㎡
建筑面积:420㎡
文章图片
文章图片
文章图片
第十五套:
占地尺寸:20m*13m
占地面积:247㎡
建筑面积:404㎡
文章图片
文章图片
文章图片
第十六套:
占地尺寸:16.9m*12.8m
占地面积:210㎡
建筑面积:365㎡
文章图片
平面布局图:
文章图片
文章图片
第十七套:
占地尺寸:15.1m*13.8m
占地面积:215㎡
建筑面积:390㎡
文章图片
文章图片
文章图片
第十八套:
占地尺寸:17m*10m
占地面积:156㎡
建筑面积:298㎡
文章图片
文章图片
文章图片
第十九套:
占地尺寸:14.7m*16.7m
占地面积(不含庭院):175.4㎡
建筑面积(不含庭院):348.2㎡
文章图片
文章图片
文章图片
第二十套:
占地尺寸:11.6m*9.6m
占地面积:106.4㎡
建筑面积:305.5㎡
文章图片
平面布局图:
推荐阅读
- 1—7月份我国农业农村投资进一步趋稳 回升势头明显
- 投资增长|1—7月份我国农业农村投资进一步趋稳 回升势头明显
- 农业农村部:1至7月份我国农业农村投资进一步趋稳
- 经验教程|肥乡农村小子被北大录取!,高分“诀窍”强力来袭!
- 诠释|韩雪第一次见农村茅厕,脱口6字被怒赞!诠释了“教养”2字
- 戏说三农|2021比2020更难熬?农村这类人的1个臭毛病趁早改,别怪没提醒你
- 流年若往昔|要钱还是房?农村宅基地退出方式新变化,6种方式自己选
- 小吴上农村|南方特有的树种,它的果实是炖肉必备调料之一,售价20多元一斤
- 郑妈妈的美食日记|12月底农村新农合截止缴费,农民嫌贵不愿付费,却不知3大变化!
- 郑妈妈的美食日记|农村“隔辈不亲”现象频发,70后拒绝义务带孙子,这是为什么?
