143平米的房这样装修,空间大了1倍,装修只花了17万
好多人都喜欢那种复杂的装修风格 , 感觉那样的装修高端大气上档次 , 其实不然 , 过于复杂的装修让室内空间臃肿且凌乱 , 而且特别浪费钱 , 打扫也是个难题 。 不如借鉴中旅蓝岸国际这套143平米的装修方案 , 采用简约风的装修 , 装修效果简直好到爆!
这一家的女主人书特别喜爱动物 , 为了宠物放弃了在世界500强的工作 , 转而经营了一家线上宠物用品商店 , 与先生焜也因此结缘 。
客厅可以说是家居装修中耗费较大的项目 , 如今越来越多的业主更喜欢简单大气 , 所以客厅在装修的过程中无需过多繁琐的装饰 , 简约大气既突出风格又避免了喧宾夺主 。 不过为了让客厅“家”的气味更突显 , 可以把一些射灯或筒灯装在吊顶内 , 这样一来不但拉伸了视觉效果 , 又避免了繁杂灯饰的累赘 , 当然 , 日后清洁起来也更加的方便哦 。
文章插图
从房屋结构来看 , 它是一个标准横厅设计 , 100平米出头的空间被划分成了数个小房间 , 客厅、餐厅窄而狭长 , 如果按照常规思路将沙发摆放于两者中间会影响空间的流畅性、观影距离不够、收纳空间相对难设置等问题 。 基于这样的客观前提与认知共识 , 我们需要处理的是“单纯又复杂”的空间关系 。
在卧室内最好设计一个宽大的落地窗户 , 这样可以使房间看起来更加明亮 。 如果需要的话我们可以装修一些罗马柱 , 在建筑墙面中部用一些腰线进行装饰 。
文章插图
宠物们都有个特质 , 喜欢用“原始的方式对抗人类社会快速的发展”(简单来说就是:咬电线!)于是 , 设计师分别做了:加厚主卧床头墙体 , 书桌内嵌插座的处理 。 保护电线 , 也保护宠物 。
在设计卫生间的时候 , 有条件的业主可以考虑干湿分离 , 让整个空间分成几个独立的小区域 。 保证原本的功能性的同时 , 也能减少干扰 , 使用起来更加方便 。
文章插图
除此之外 , 在卫生间里我们也根据实际情况 , 特别增加了收纳空间 , 以便储藏宠物们的洗护用品 。
餐厅怎么装修好看又实用?如果你家餐厅的空间比较小导致电器无法安放 , 那么我们可以利用做几个电器柜 , 像是一些嵌入式的烤箱、微波炉或者常用的小电器都可以放在这里 。 既缓解收纳压力的同时餐厅离厨房比较近烹饪时拿取也比较方便 。 装这样装修餐厅就会好看又实用 。
文章插图
在餐厅增加了餐边柜与操作台 , 设计上满足女主人对日式餐厨形式的喜好 。
其实现代户型中书房的位置往往可有可无 , 有的书房和卧室相连 , 承担了半个娱乐间的功能 。 男主人在书房玩着游戏 , 女主人在卧室看电视 , 有时候也是一种协调 , 所以书房不一定非要一板一眼 , 风格适当和卧室统一也是ok的设计 。
文章插图
设计师尽可能去了解并分析他们的喜好、习惯 。 细致到诸如:鞋柜按照常穿的鞋码、样式去设计格间;统计宠物们的刷子、毛梳有多少把 , 大概是什么形状……
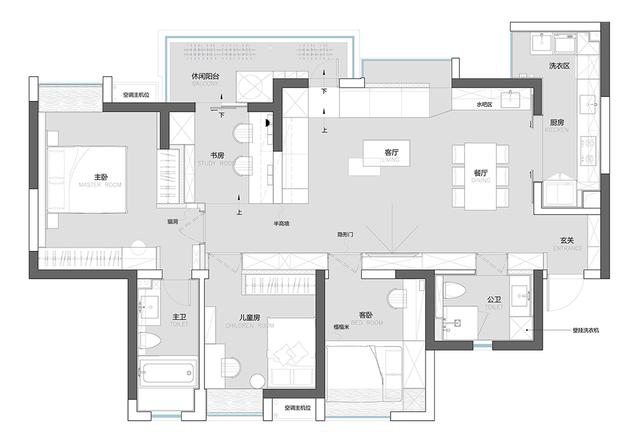
以下就是本套中旅蓝岸国际小区143平米四居室房子的户型图 。
文章插图
户型图
【143平米的房这样装修,空间大了1倍,装修只花了17万】以上就是小编为各位朋友们带来的 , 中旅蓝岸国际小区143平米的简约风格设计案例了 , 这样的简约设计是不是让你心动不已呢?通常来讲 , 143平米的房子适合打造成四居室 , 高端显大气的简约风格也值得你选择 。 朋友们装修的话 , 可以参考这套案例里出现的装修注意事项 , 避免装修走弯路 。
推荐阅读
- 这些装修工艺和家居用品,正被人们逐渐淘汰,因为替代品确实更好
- 小厨房装修没头绪,不如尝试下这个方案,墙壁留一半,少买张餐桌
- 十八线小县城,自己买材料,找游击队装修,太过简单,被坑了
- 168㎡美式风格装修,墨绿色沙发、壁炉电视背景墙,全屋真高级
- 橱柜吊柜要试试这样的设计,倾斜式的吊柜不碰头,非常的实用
- 无论面积大小,卫生间装修都不能忽视的问题,再没钱也要做
- 120平方三室二厅的装修案例,看看怎么装出理想家
- 简约新房入住,温馨舒适又大气,入户就被迷住,11万装修费值了
- 装修工期一拖再拖 新房难入住主人着急
- 第一次装修房子,125平却花了20多万,自己买材料,超出预算
