165平米三居室的北欧风格案例,只花18万( 二 )
我们的生活离不开食物 , 而食物的烹饪离不开厨房 。 它是使用频率最高的场所之一 , 当然要以实用为主 。 一款精美实用的厨房 , 能够激发你下厨的兴趣 。
文章插图
厨房以浅色为主 , 浅灰色橱柜门高级感倍增 , 绿色的地砖很漂亮 , 也呼应了客厅的色调 。
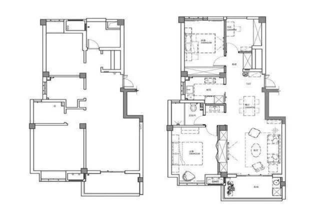
以下就是本套融创香山壹?院小区165平米三居室房子的户型图 。
文章插图
【户型图】借用厨房部分面积 , 将干区移到卫生间外;利用柱子间厚度 , 将整面电视墙改为柜子隔断 。
以上就是小编为各位朋友们带来的 , 融创香山壹?院小区165平米的北欧风格设计案例了 , 这样的北欧设计是不是让你心动不已呢?通常来讲 , 165平米的房子适合打造成三居室 , 高端显大气的北欧风格也值得你选择 。 朋友们装修的话 , 可以参考这套案例里出现的装修注意事项 , 避免装修走弯路 。
推荐阅读
- 简约北欧风新房完工,自然清新又舒适,朋友都说入户就被迷住了
- 我家135平三居室,简约装修风格,美翻了
- 闺蜜家128平米,装修只用15万!三居室太合适有没有
- 欧式风格的145平米的三居室装修成这样,亲朋好友都艳羡
- 这套118平米的三居室,最后还是选定法式风格,效果竟远超预期
- 143平米的三居室要怎么装修才出其不意,选择复古风格准没错
- 晒晒闺蜜106㎡三居室,效果堪比样板间,从玄关就能把人迷住
- 125平米的房子包括哪些功能间?装修成现代风格三居室好不好?
- 90后小夫妻花9万元装修的混搭风格,108平米三居室太赞了
- 18万装修出142平米三居室现代风格,看过的人都点赞
