燃气设备:西海岸嘉陵江东路北住宅项目规划变更:增加地下燃气设备间
半岛采访人员 于红靓
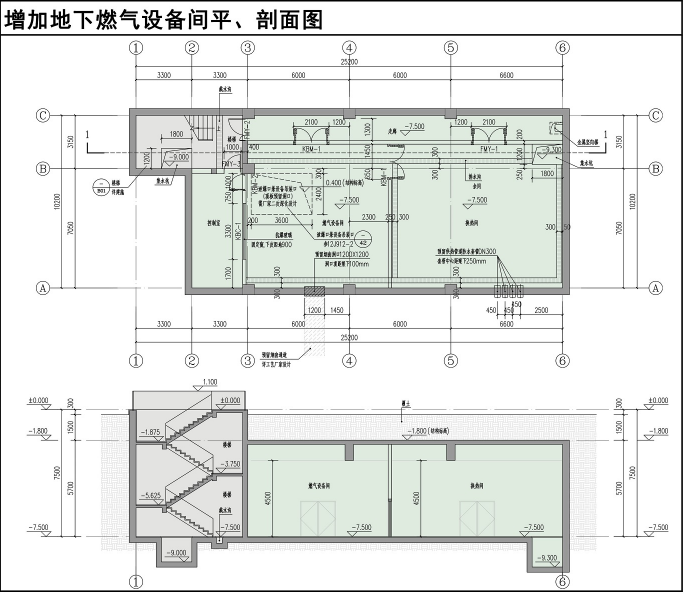
【燃气设备:西海岸嘉陵江东路北住宅项目规划变更:增加地下燃气设备间】近日 , 青岛慧康医院嘉陵江东路北(387号)住宅项目规划建筑变更方案进行批前公告 , 项目位于青岛市黄岛区嘉陵江东路北侧 , 由青岛慧康医院建设 。
此次规划变更 , 增加地下燃气设备间 , 位于基地西北角 , 所增加燃气设备间建筑面积为248.92㎡ 。原地下建筑面积为20631.17㎡ , 调整后地下建筑面积为20880.09㎡ 。原总建筑面积为57963.86㎡ , 调整后总建筑面积为58212.78㎡ 。
文章图片
文章图片
文章图片
文章图片
推荐阅读
- 推荐:伊朗阅兵式展示医疗设备,官兵戴口罩检阅,医生和护士站在了前线
- 「23」即墨26处智能交通技术监控设备4月23日起启用 地点公布
- 『361』西海岸琅琊台家园361套房源拿预售 其中住宅338套参考价10664元/㎡
- 陪读打卡调设备全家上阵忙网课 家长直呼:太难了
- 武汉捐赠内蒙古医疗物资包机飞出,包括ECMO等设备
- 『预转现』优化不动产登记流程 西海岸新区预转现抵押登记合并办理
- 时政:“江”“湖”有情!湖北向黑龙江捐助3000万元医用物资设备
- 『82』西海岸新增、调试升级82处交通电子执法设备 5月1日投入使用
- “江”“湖”有情!湖北向黑龙江捐助3000万元医用物资设备@“江”“湖”有情!湖北向黑龙江捐助3000万元医用物资设备
- 黑龙江:20台医疗设备“乘”高铁驰援口岸疫情防控
