▲4款三层农村别墅,多阳台+大露台设计,巴适得板!

文章图片

文章图片

文章图片

文章图片

文章图片

文章图片

文章图片

文章图片
房子在人们的心中占据着很重的分量 , 因为房子不仅仅用于居住 , 更多的象征着温馨、亲情、安全以及心灵的慰藉 。
在农村有个乡村别墅是不少城市人的梦想 , 大家都梦想着在老家能有块宅基地 , 建一所大房子 , 拥抱自然、享受生活 。 今天为大家带来4款三层农村别墅 , 多阳台+大露台 , 巴适得板!
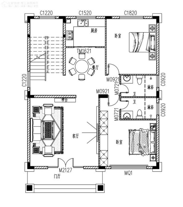
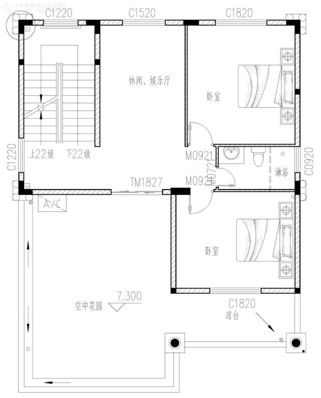
1
开间:12.3米
进深:10.8米
占地面积:132平方米
建筑面积:305平方米
层数:3层
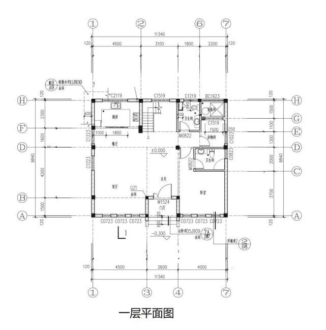
2
开间:9.9米
进深:9.8米
占地面积:97平方米
建筑面积:309平方米
层数:3层
3
开间:10米
进深:11米
占地面积:110平方米
建筑面积:280平方米
层数:3层
4
开间:11.3米
进深:9.8米
占地面积:111平方米
建筑面积:277平方米
层数:3层
【▲4款三层农村别墅,多阳台+大露台设计,巴适得板!】想修一套?请关注并私信!
推荐阅读
- 河南新农村频道5月10日河南省无新增新冠肺炎确诊病例、疑似病例、无症状感染者
- 小屁孩儿网友:怨不得旁人,为啥现在很多公司不要农村孩子?老板道出缘由
- 明英传奇但别“贪”,“穷”人会遇到这五种情况
- 桑叶农村里常见的桑树叶,除了喂蚕还有这用途,可惜很多人不知道
- 落叶的季节伤小个子必看!4款显高显瘦西装穿搭指南
- 『雅诗兰黛』4款网红精华大测评:兰蔻提亮补水,雅诗兰黛消炎抗痘
- 农村大瓦房,有没有好办法(除独立生炉子和电暖气)让一个屋子暖和
- 『』适合农村建的两层小别墅,简单精致,养老首选!
- 环球家居热潮好看又好养,还能添香气,室内适合盆栽什么花?首选此4款
- 上苑柳农时农村的一种野菜多吃点,补血益气,美容养颜!,女人养宫就是保命
